Eladó Ház, Nagyér

Pénzügyek
(tájékoztató példa, nem minősül ajánlatnak)

Vételár
4 600 000 Ft

25% önerő
1 150 000 Ft

Lakáskölcsön (piaci)
3 450 000 Ft

Törlesztőrészlet 20 éves futamidővel 33 757 Ft

Az itt látható számok, jelen piaci körülmények között általánosan elérhető lehetőségek közül kerültek kiemelésre, így nem ajánlattétel, minden esetben pontos minősítés szükséges.
Address
Hungary, Csongrád, 6917 Nagyér
Building
AltípusCsaládiYear of construction1940 év
Constraction typeVegyes
Technical data
HeatingEgyébKomfort típusKomfort nélküli
General
ParkingTelken parkoló
Rooms
Number of bedrooms3
Description

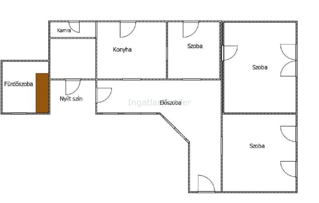
Csak az OTP Ingatlanpont kínálatában! Eladó Csongrád-Csanád vármegyében, Nagyér község központjához közel, egy 3 szoba, előszoba/közlekedő, konyha, kamra, fürdőszoba helyiségekből álló, felújítandó állapotú, 100 m2-es, vegyes falazatú (nagyrészt tégla és vályog) családi ház! A ház 1940 körül épült, ahhoz 2000 m2-es nagy telek tartozik, pár frissen ültetett gyümölcsfával. A telken góré és tároló található. A ház szerkezetileg és statikailag jó állapotban van. A nyílt szín mellett, a padlásfeljáró melletti helyiségben került kialakításra egy nagyobb fürdőszoba, mely a nyílt színnel és így a ház hosszú közlekedőjével egybe nyitható. A tető is jó állapotú. A ház felújítása pár éve megkezdődött: a tulaj minden szobába új ablakokat szereltetett be. A napfényes előszoba fix ablakai a régiek. A fürdőszoba kialakítása megkezdődött: ide be lett szerezve a vadiúj csempe és a vadiúj dizájner zuhanykabin káddal. Ezek a berendezések mind maradnak a házban, részei a vételárnak. Itt maradnak továbbá a friss függönykarnisok és pár új beltéri ajtó is. A ház le lett betonozva és pár helyen falazás is történt új téglákkal. Víz, villany, gáz van a házban, jelenleg szüneteltetve vannak, a minimális villany kivételével. Világítás jelenleg csak egy szobában van, a többiben nincs lámpa, egyébként a világítás mindenhol be van vezetve és működőképes. A háznak fűtése jelenleg nincs (a régi le lett szerelve), de ki lett építve a hálózat radiátoros egyedi gázfűtéshez. A ház mind párok, mind családok számára tökéletes lehet jó elhelyezkedése, méretei és adottságai alapján! Bár a ház felújítását be kell fejezni, kifejezetten hangulatos otthon alakítható ki belőle. Csendes helyen van, de a központhoz közel, a házhoz tartozó nagy telek is sok lehetőséget rajt magában. A község rendezett, van bolt, orvos, gyógyszertár, védőnő, óvoda és alsó tagozatos általános iskola is, mind a házhoz közel. A községben könyvtár is működik, van közösségi élet is. Mezőhegyes 12 perc, Tótkomlós 5 perc alatt elérhető autóval. Az ingatlan tehermentes, arra hitel, babaváró támogatás is felvehető, melynek elintézésében szintén gyors és szakértő segítséget nyújtunk önnek igény esetén! A ház az adásvétel után kisebb kipakolást követően birtokba vehető! Ha felkeltettem érdeklődését, keressen bizalommal! Vagy esetleg ingatlant adna el? Akkor is keressen bátran a megadott telefonszámon! Akár ingyenes árkalkulációt is szívesen végzünk Önnek, további kötöttségek nélkül! Érdeklődni: Lázár Krisztina

Referencia szám: M295203-ITE

Sell — House
  • Square:96 m2
  • Plot area (m2):1998 ares
  • Number of bedrooms:3
  • Listing ID:581073
  • Sell price
  • 11 802
    €/m2 123
Listing was posted by

Take a photo of the code below with your phone and view the ad on other devices also.

Looking for real estates?

Regisztráljon keresőként, akár kiemelésekkel

apply paid services

Similar listings
^ Go up