Eladó ház, Sé
Address | |||
| Hungary, Vas, 9789 Sé | |||
Building | |||
| Altípus | Ikerház | Year of construction | 2026 év |
| Constraction type | Tégla | ||
Technical data | |||
| Heating | Hőszivattyú | Water | Van |
| Gas | Nincs | Electricity | Van |
| Sewerage | Van | ||
General | |||
| Parking | Garázs | Orientation | dél |
Rooms | |||
| Number of bedrooms | 4 | ||
Description | |||
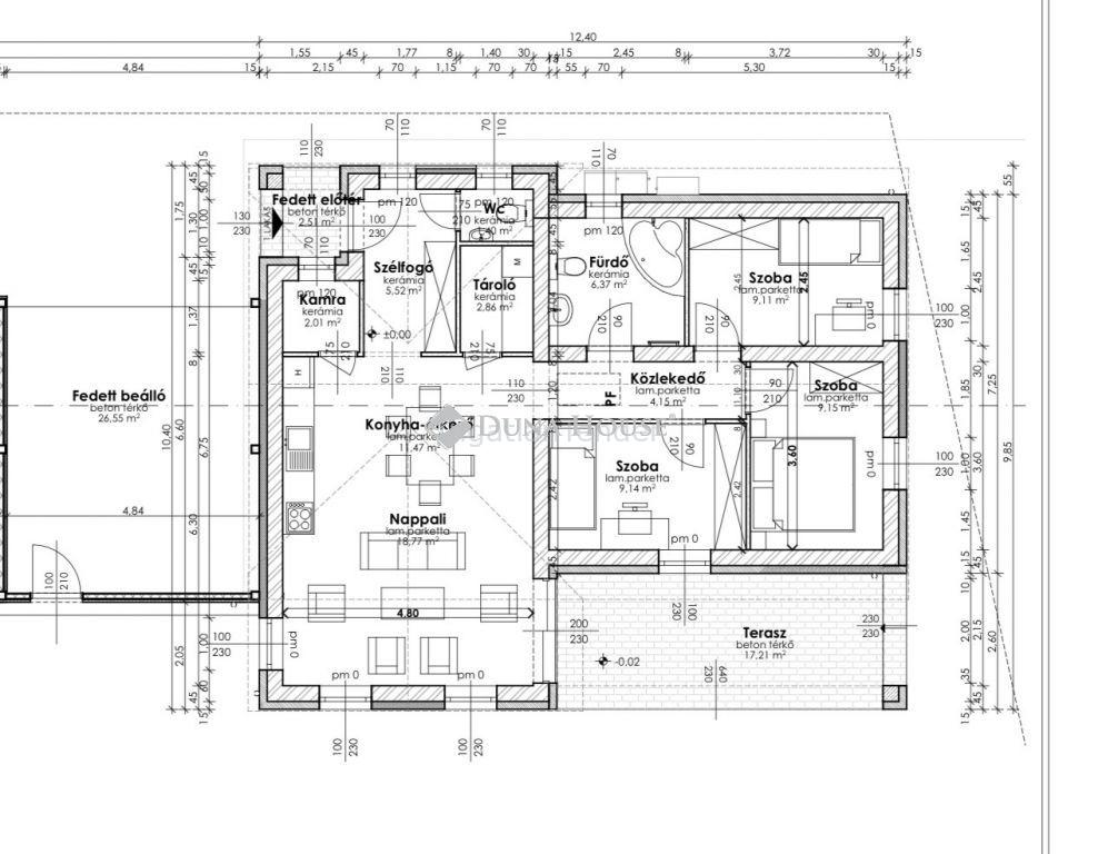
Szombathely közvetlen közelében, Sében újépítésű, ikerházi lakóingatlan várja új tulajdonosát! Az ikerházak nem közvetlenül érintkeznek egymással, mivel garázzsal/fedett autóbeállóval vannak összekötve, így nincs közvetlen falszomszédság, így teljesen egy önálló ház érzetét kelti. Akár a 2025 Szeptembertől 3 %-os fix kamatozású Otthon Start program igénybevételével! Várhatóan 2026. év végi átadással! Igény esetén van lehetőség belső áttervezésre! 1. sz. ingatlan NAPPALI + 3 SZOBÁS IKERHÁZFÉL , nettó 80 nm alapterülettel + 17,21 nm terasszal, fedett autóbeállóval (26,55 nm) és 420 nm saját telekhányaddal. Ár: 79 100 000,- Ft 2. sz. ingatlan NAPPALI + 3 SZOBÁS IKERHÁZFÉL , nettó 138 nm alapterületű + garázzsal. ( ELKELT) Az ár kulcsrakészen, telek árral együtt értendő! A tervezés során fontos szempont a beépített anyagok magas minősége, a költséghatékony fenntartás és az épületek értékállósága. A projekt főbb jellemzői: - Igényes külső megjelenés - Praktikus alaprajzokkal/, de igény szerint a belső elrendezés is még módosítható - Napfényes, jó tájolású házak - Választható belső burkolatok, szaniterek, ajtók Főbb műszaki paraméterek: - Teherhordó falak: 30 N+F - Válaszfal: 8 cm vastagságú gipszfal (albafal) TETŐ: - tetőszerkezet fenyőből, favédelemmel ellátva - Terrán beton cserépfedés (renova plus) - 30 cm vastag szigetelés ÉPÜLETGÉPÉSZET: - GREE Versati III osztott levegő-víz 10 kW hőszivattyú - padlófűtés - fürdőszoba törölközőszárító radiátor KÜLSŐ NYÍLÁSZÁRÓK: - fehér színű műanyag nyílászáró 5 kamrás profilból, 3 rétegű üvegezéssel - bejárati ajtó fehér színben, több pontos biztonsági zárral HOMLOKZAT: - 15 cm vastagságú EPS polisztirol hőszigetelés - lábazatra 12 cm vastag szigetelés kerül TERASZ: - 20 cm vastag kavics ágyazaton, 10 cm vastag CKT beton, rajta leier piazza térburkolat Családi Otthonteremtési Kedvezmény + Hitel igényelhető! Az ár kulcsrakészen, telek árral együtt értendő! Naprakész információk a Duna House irodákban! Helyszínrajz, műszaki leírás, alaprajzok, lakás felszereltség, pontos tájékoztatás Nálunk! További információkért, fotókért és a megtekintés miatt kérem, hívjon vagy küldjön e-mailt! És ne feledje, vevőinknek minden szolgáltatásunk INGYENES! Érd.: Volner Szilveszter Tel.:+ Referencia szám: PR054671/HZ/26575-ITE | |||


