Eladó Lakás, Nagyszénás

Pénzügyek
(tájékoztató példa, nem minősül ajánlatnak)

Vételár
5 800 000 Ft

25% önerő
1 450 000 Ft

Lakáskölcsön (piaci)
4 350 000 Ft

Törlesztőrészlet 20 éves futamidővel 42 563 Ft

Az itt látható számok, jelen piaci körülmények között általánosan elérhető lehetőségek közül kerültek kiemelésre, így nem ajánlattétel, minden esetben pontos minősítés szükséges.
Address
Hungary, Békés, 5931 Nagyszénás
Building
Year of construction1970 évConstraction typeVegyes
Technical data
FloorFöldszintHeatingKonvektor
Komfort típusKomfortos
General
ParkingTeremparkoló
Rooms
Number of bedrooms3
Description

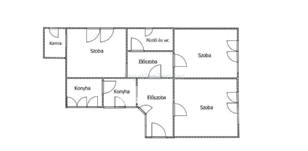
Eladó Békés vármegyében, Nagyszénás központjában egy 3 szoba, előszoba/közlekedő, kis előszoba, konyha, kamra, fürdőszoba és WC (egyben) helyiségekből álló, átlagos állapotú, 92 m2-es, vegyes falazatú (tégla és vályog) társasházi sorházi lakás! A lakás 1970 körül épült, ahhoz saját kert és garázs is tartozik! Az épület szerkezetileg és statikailag jó állapotban van, a tető is jó. A lakás felújítása már megkezdődött az egyik szobában, és új fürdőszoba is ki lett alakítva. A lakás jó fekvésű, jó hangulatú, kifejezetten napfényes. A felújítás befejezése az új tulajra vár! A lakás fűtése jelenleg gázkonvektorokkal megoldott. A lakás mind párok, mind kisebb vagy nagyobb családok számára tökéletes lehet központi elhelyezkedése, méretei és adottságai alapján! Bár a felújítását be kell fejezni, kifejezetten hangulatos otthon alakítható ki belőle, nagyszerű áron! Orosháza városa 10 perc alatt elérhető autóval. Az ingatlan tehermentes, arra CSOK, hitel, babaváró támogatás is felvehető, melynek elintézésében szintén gyors és szakértő segítséget nyújtunk önnek igény esetén! A lakás adásvétel után azonnal birtokba vehető! Ha felkeltettem érdeklődését, keressen bizalommal! Vagy esetleg ingatlant adna el? Akkor is keressen bátran a megadott telefonszámon! Akár ingyenes árkalkulációt is szívesen végzünk Önnek, további kötöttségek nélkül!

Referencia szám: M296872-ITE

Sell — Apartment
  • Square:96 m2
  • Number of bedrooms:3
  • Listing ID:549675
  • Sell price
  • 14 882
    €/m2 155
Listing was posted by

Take a photo of the code below with your phone and view the ad on other devices also.

Looking for real estates?

Regisztráljon keresőként, akár kiemelésekkel

apply paid services

Similar listings
^ Go up
Tips
Ha ingatlant hirdet, javasoljuk a célzott hirdetésfigyelő alkalmazását, amivel emlékeztetheti a korábbi megtekintőket.
I don't want any more tips