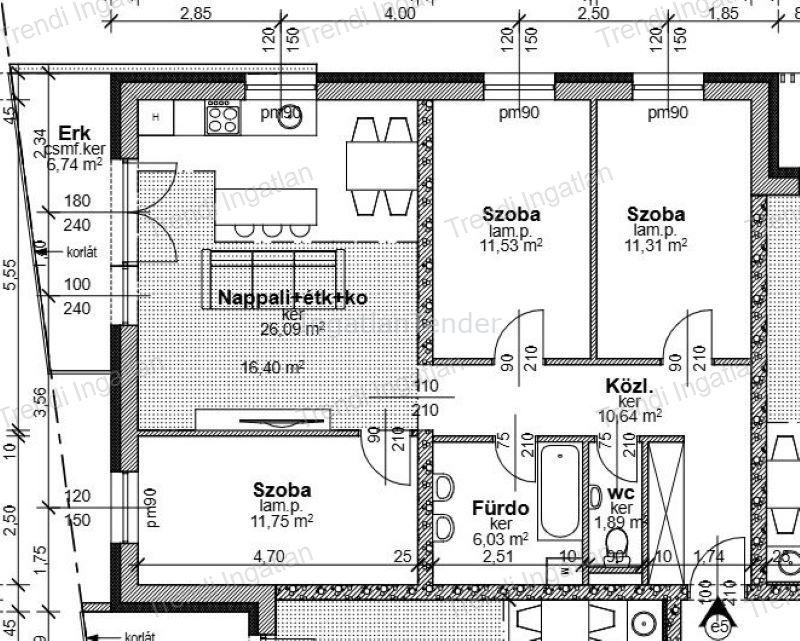
Nappali + 3 szobás, erkélyes lakás
Address | |||
| Hungary, Győr-Moson-Sopron, 9000 Győr - Szitásdomb | |||
Building | |||
| Building-type | Tégla | Constraction type | Tégla |
| Object state external | Hőszigetelt | ||
Technical data | |||
| State of the object | Új építésű | Floor | 1 |
| Heating | Padlófűtés | Komfort típus | Összkomfort |
Rooms | |||
| Number of bedrooms | 4 | ||
Description | |||
Győr-Belvárosától pár perces autóútra, Szitásdomb új kialakítású részén új építésű 29 lakásos társasházban nappali + 3 szobás lakás eladó. Az 1. emeleten található 79,24 nm-es ingatlanban amerikai konyhás nappali, 3 szoba, fürdőszoba, külön WC, közlekedő, előtér kerül kialakításra. A nappaliból 6,74 nm-es erkély nyílik. Az ingatlan fűtéskész ára: 67.990.000 Ft. Kulcsrakész befejezés kérhető. Gépkocsibeálló ára: 1.700.000 Ft Lehetőség van tároló vásárlására is, ára: 1.500.000 Ft-tól. A társasház Szitásdomb új lakóparkjában épül. A földszinti lakások terasszal, az emeleti lakások erkéllyel/terasszal rendelkeznek. A társasház zárt udvarán felszíni parkolók kerülnek kialakításra. A társasház 30 cm-es falazóelemből, 20 cm-es homlokzati hőszigeteléssel épül. A műanyag, hőszigetelt nyílászárók 6 légkamrásak, 3 rétegű üvegezéssel rendelkeznek. Az ár tartalmazza a redőny előkészítését lefutókkal, az elektromos kiépítés felár ellenében kérhető. A társasház fűtését hőszivattyú biztosítja. Lakásonként egyedi hőmennyiségmérő, a fürdőszobában törölközőszárító radiátor kerül. Klímakiépítés igény esetén felár ellenében kérhető. A társasház átadásának tervezett időpontja: 2026 nyár Bővebb információkért keressen bizalommal! Hétköznap és hétvégén is várom hívását! A hirdetésben feltüntetett képek illusztrációk. | |||



