Sell, house, Budapest, II. kerület
Address | |||
| Hungary, Budapest, 1029 II. kerület - Budaliget | |||
Building | |||
| Year of construction | 2000 év | ||
Technical data | |||
| State of the object | Felújítandó | Heating | Gázkazán |
| Gas | Van | Electricity | Van |
| Sewerage | Van | ||
General | |||
| Orientation | nyugat | ||
Rooms | |||
| Number of bedrooms | 10 | ||
Description | |||
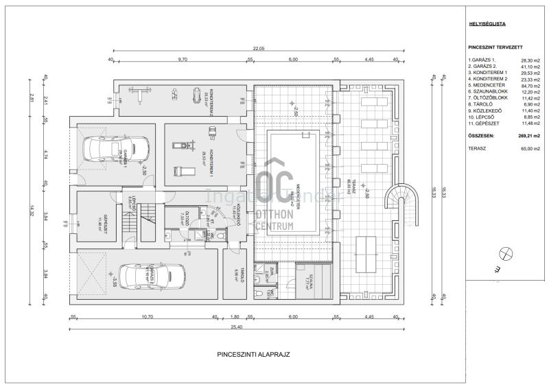
Budapest II. kerületének egyik legkedveltebb, zöldövezeti részén, Adyligetben kínálunk megvételre egy különleges adottságokkal rendelkező, nagyméretű családi házat. ???? Telek mérete: 800 m² ???? Nettó alapterület: 546 m² ???? Jelenlegi kialakítás: 10 szoba, 3 fürdőszoba, hatalmas nappali és konyha ???? Garázs: 2 nagy méretű, zárt beálló ???? Medence: elkezdett építés ???? Közlekedés: buszmegálló az utcában ⸻ A ház teljes külső homlokzata már megújult, így az ingatlan modern, esztétikus külsőt kapott. A belső tereket teljesen visszabontották, így az új tulajdonos szinte a nulláról, saját elképzelései szerint fejezheti be a belső kialakítást – akár luxus családi rezidenciát, akár többgenerációs otthont is létrehozhat. A jelenlegi belső struktúra tágas és rugalmasan alakítható, a 10 szoba igény szerint újragondolható, a nappali mérete pedig egyedülálló térérzetet biztosít. A két garázsban kényelmesen elférnek a családi autók, a kertben pedig már elkezdték egy privát medence építését – az új tulajdonos befejezheti ezt, és egy valódi oázist varázsolhat a kertből. ⸻ Miért különleges ez az ingatlan? •Exkluzív lokáció a természet közelében, mégis kiváló közlekedéssel •Ritkán elérhető méret és kialakítási lehetőségek •Készen áll arra, hogy valaki a saját ízlése szerint formálja tökéletessé •Kiváló ár-érték arány ebben a kategóriában ⸻ Ha Ön egy tágas, jól megközelíthető, egyedi lehetőségeket rejtő ingatlant keres Budapest zöldövezetében, ne hagyja ki ezt a lehetőséget! ???? További információért, alaprajzért, vagy megtekintés egyeztetéséhez kérem, keressen bizalommal! Közművek: víz,villany,gáz,csatorna | |||


