Sell, house, Jász-Nagykun-Szolnok, Kunmadaras
Address | |||
| Hungary, Jász-Nagykun-Szolnok, 5321 Kunmadaras | |||
Building | |||
| Year of construction | 1976 év | ||
Technical data | |||
| State of the object | Jó | Heating | Egyéb |
| Electricity | Van | ||
General | |||
| Orientation | dél | ||
Rooms | |||
| Number of bedrooms | 2 | ||
Description | |||
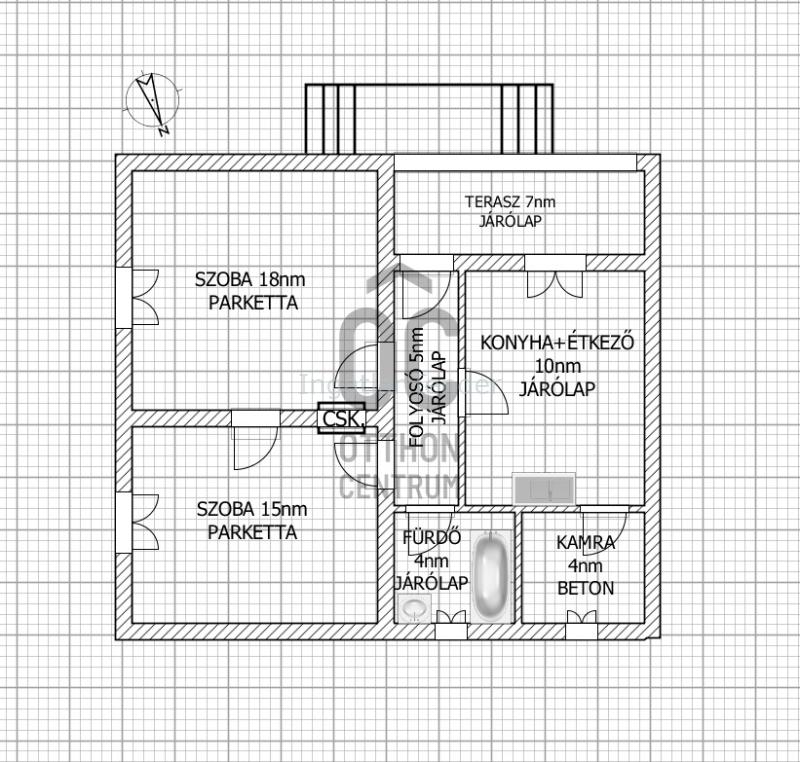
Figyelem, jó lehetőség Kunmadarason! Az ingatlanpiac egyik legizgalmasabb lehetősége vár Önre Kunmadarason, Jász-Nagykun-Szolnok vármegyében. Kínálatunkban egy használt ház áll rendelkezésére, amely nemcsak komfortos otthont, hanem egy remek befektetési lehetőséget is kínál. Az ingatlan alapterülete 63 négyzetméter, míg a telek mérete 872 négyzetméter, így bőven van hely a kreatív ötletek megvalósítására, akár bővítési lehetőség keretein belül is. A házban két világos szoba található, amelyek kellemes légkört biztosítanak. Az ingatlan állapota jó, így azonnal költözhető, ami különösen vonzó lehet a fiatal felnőttek számára, akik azonnali otthont keresnek. A fürdőszoba a 70-es éveknek megfelelően van kialakítva. Fontos, hogy a WC ott van, de a bekötése még várat magára. A 7 négyzetméteres terasz ideális helyszín a pihenésre, ahol élvezheti a csendes környék nyugalmát. A vegyes fűtés, amely cserépkályhával biztosított, gazdaságos megoldást nyújt a téli hónapokban. A környék ellátottsága kiváló, a közlekedési csomópont közelsége pedig kitűnő közlekedést biztosít. A város központja mindössze néhány perc autóútra található, ahol boltok, éttermek és egyéb szolgáltatások várják Önt. A környék biztonságos és csendes, így ideális választás lehet családoknak, fiatal pároknak, vagy akár kisállattal költözőknek is. A rendezett kert, valamint a kerti tároló extra kényelmet nyújt, hiszen a szabadban eltöltött idő még élvezetesebbé válik. Ez a tehermentes ingatlan nem csupán egy új otthont jelent, hanem egy lehetőséget is, hogy a saját elképzelései szerint alakítsa ki életterét. A felkapott környék folyamatosan fejlődik, így a befektetés értéke idővel csak növekedhet. A csendes utcák és a barátságos szomszédok garantálják, hogy itt otthonra találjon. Bármilyen kérdése van az ingatlannal vagy a vásárlási folyamattal kapcsolatban, bátran keressen meg! Én itt vagyok, hogy segítsek Önnek megtalálni álmai otthonát vagy a tökéletes befektetést. Ne habozzon, hiszen a lehetőségek gyorsan elillanhatnak! Közművek: víz,villany | |||


