Eladó ház, Budapest 18. ker.
Cím | |||
| Magyarország, Budapest, 1188 XVIII. kerület - Kossuth Ferenc-telep | |||
Épület | |||
| Altípus | Családi | Építési év | 1945 év |
| Építési mód | Tégla | ||
Műszaki adatok | |||
| Fűtés | Villanyfűtés | Komfort típus | Összkomfort |
| Víz | Van | Gáz | Van |
| Villany | Van | Csatorna | Van |
Általános adatok | |||
| Tájolás | délkelet | ||
Helyiségek | |||
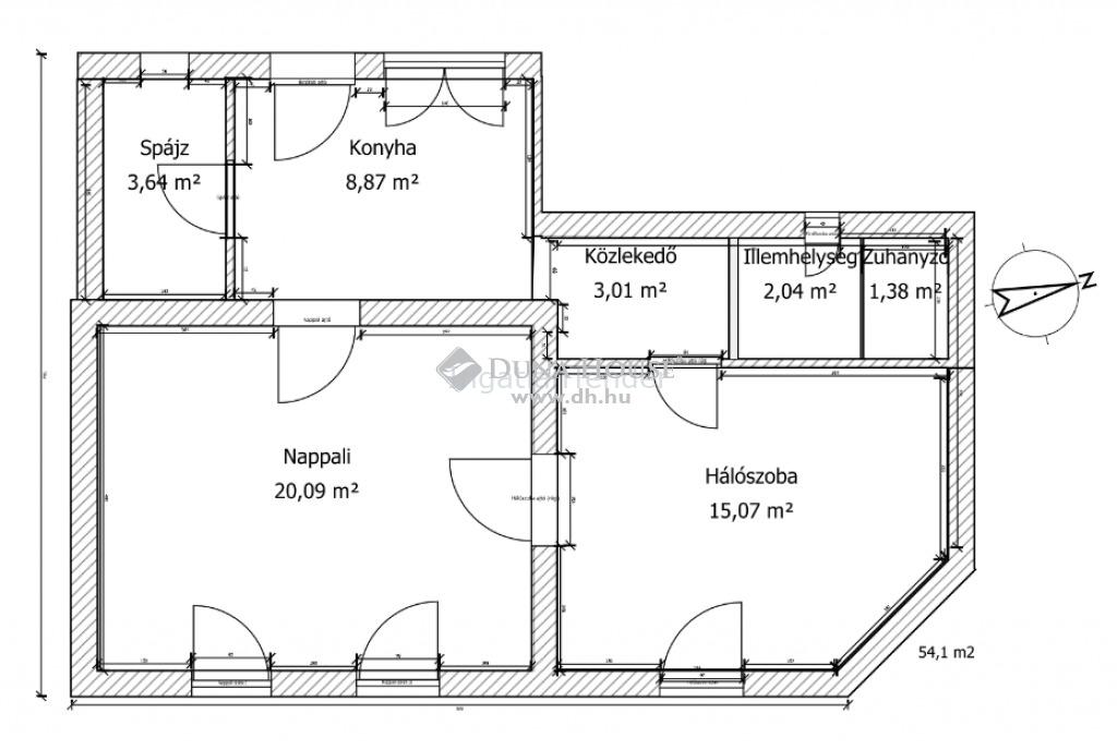
| Szobaszám | 4 | ||
Leírás | |||
Eladó a 18. kerület közkedvelt részén, nyugodt, rendezett környezetben, egy 54 nm-es, és egy 33nm-es, két generációnak kiválóan alkalmas családi házak, 710 nm-es telken! Mindkét ház két szobás, és összkomfortos. A nagyobbik ingatlan felújított, a tetőre 5,8 KW 20 panel napelem került felszerelésre, ami mindkét otthont ellátja energiával. A kisebbik ingatlan felújítandó, alatta pince található. A kert kiválóan alkalmas baráti összejövetelekre, ásott kút, szaletli, sütögető, és egy kis játszótér szolgálja kényelmünket. Ha felkeltette érdeklődését ez a kiváló paraméterekkel rendelkező ingatlan, további kérdéseivel, megtekintésért kérem hívjon, akár hétvégén is! A Duna House teljes kínálatával kapcsolatban forduljanak hozzám bizalommal! Bankfüggetlen pénzügyi szakembereink tanácsadással, ügyintézéssel tudják segíteni Önöket álmaik, céljaik megvalósításában! Vegye igénybe díjmentes konzultációinkat! https://www.facebook.com/otthonkonnyeden Referencia szám: HZ067330 | |||


