Eladó Ház, Balatonszemes
Cím | |||
| Magyarország, Somogy, 8636 Balatonszemes | |||
Épület | |||
| Altípus | Családi | Építési év | 2025 év |
| Építési mód | Tégla | ||
Műszaki adatok | |||
| Fűtés | Villanyfűtés | Komfort típus | Összkomfort |
Általános adatok | |||
| Parkolás | Telken parkoló | ||
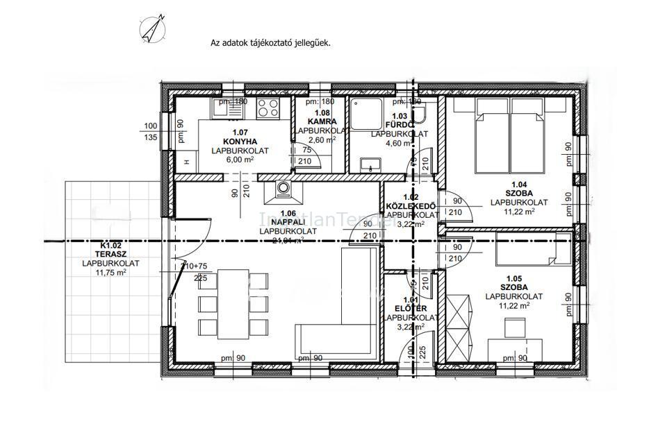
Helyiségek | |||
| Szobaszám | 5 | ||
Leírás | |||
Somogy vármegyében, Balatonszemesen, 135 m2-es, újépítésű családiház eladó! Az ingatlan, a település régóta lakott utcájában, de egy újonnan kialakított, kis lakóparkban helyezkedik el, további három új épülettel. A környék nyugodt és barátságos. A vízpart könnyen elérhető, mindössze 800 méternyi sétával. Mindegyik ingatlanhoz saját kertrész kapcsolódik, ehhez 200 m2. Az épületben elektromos fűtés lesz. A nappaliban padlófűtés, a szobákban modern, elektromos konvektor. A melegvizet elektromos vízmelegítő biztosítja majd. A homlokzati teherhordó falak 38 cm-es téglából kerültek kialakításra, amelyet 10 cm szigetelőanyaggal vontak be. A belsőfalak 10 cm-es porotherm téglából készültek, a födém és a tető 20 cm kőzetgyapot szigetelést kapott. A kedvező ár kulcsrakész állapotra érvényes! Ha a műszaki tartalommal, vagy bármi mással kapcsolatban kérdése lenne, hívjon nyugodtan. Referencia szám: M301447 | |||


