Eladó Ház, Besnyő

Pénzügyek
(tájékoztató példa, nem minősül ajánlatnak)

Vételár
89 500 000 Ft

25% önerő
22 375 000 Ft

Lakáskölcsön (piaci)
67 125 000 Ft

Törlesztőrészlet 20 éves futamidővel 656 792 Ft

Az itt látható számok, jelen piaci körülmények között általánosan elérhető lehetőségek közül kerültek kiemelésre, így nem ajánlattétel, minden esetben pontos minősítés szükséges.
Cím
Magyarország, Fejér, 2456 Besnyő
Épület
AltípusIkerházÉpítési év2024 év
Építési módTégla
Műszaki adatok
FűtésHőszivattyúKomfort típusÖsszkomfort
Általános adatok
ParkolásTelken parkoló
Helyiségek
Szobaszám1Félszobák száma3
Leírás

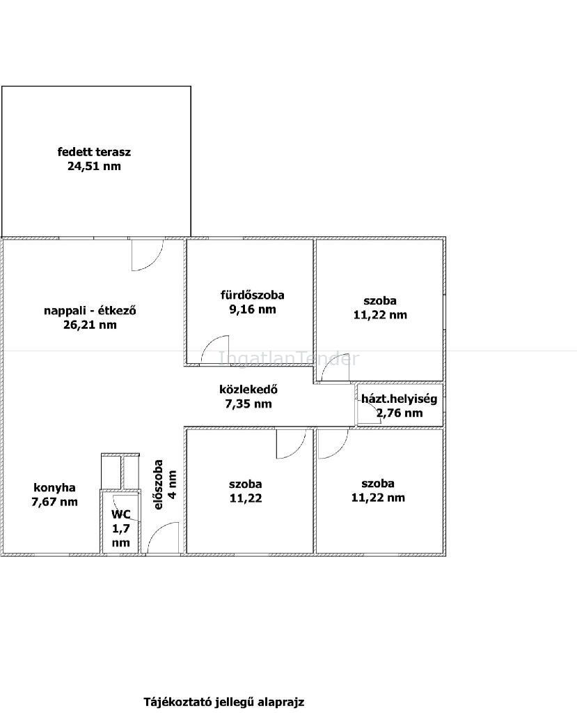
Új, modern ikerház eladó Besnyőn! Csendes, családi házas lakóövezetben kínálok 2024-ben épült ikerház egyik felét. Nettó 93 nm-es, egyszintes családi otthon 3 hálószobával, tágas nappalival, konyhával, fürdőszobával, vendég mosdóval, mosókonyhával. Murvázott kocsibeállóval. Az ikerházhoz 720 nm-es saját kert tartozik, 26 nm-es fedett terasszal (nincs az alapterületbe beleszámolva). A tégla építésű, szigetelt ingatlan fűtése energiatakarékos hőszivattyús(víz-víz) rendszerrel működik, padlófűtéses hőleadással. Emellett 3,5 kW-os hűtő fűtő klíma is beüzemelésre került. 10KW-os Napelem, elektromos kapu, kamera és riasztó rendszerrel felszerelt. Az ingatlan összes műanyag nyílászárója elektromos redőnnyel és szúnyoghálóval felszerelt, applikációról vezérelhető. Rugalmas birtokba adással, azonnal költözhető. Iskola, óvoda, orvosi rendelő, buszmegálló, posta, boltok, Polgármesteri Hivatal mind a közelben találhatóak. Jól átgondolt, élhető terekkel megálmodott, a legújabb rendszerek felhasználásával készülő ingatlan megvásárlásával egyszerre teremthet egy igényes, stílusos és barátságos otthont. Teljes körű ügyintézésben segítjük ügyfeleinket díjtalanul: Falusi CSOK, CSOK igénylése, kedvezményes hitel mobil bankári szolgáltatással, adásvétel teljes lebonyolításával. Bővebb információkért, kérem keressen bizalommal, akár hétvégén is.

89500000 Ft Érd.: Lepsényi Kornél +36

Referencia szám: M310834

Eladó — Ház
  • Alapterület:93 m2
  • Telekterület:720 m2
  • Szobaszám:1 + 3 fél
  • Hirdetés #:680021
  • Eladási ár
  • 89 500 000 Ft
    962 366 Ft/m2
Hirdető adatai

Fotózza le az alábbi kódot a telefonjával és más eszközön is láthatóvá válik a hirdetés.

Ingatlant keres?

Regisztráljon keresőként, akár kiemelésekkel

Használd fizetős szolgáltatásainkat!

Hasonló Hirdetések
^ Fel