Eladó Ház, Biri
Cím | |||
| Magyarország, Szabolcs-Szatmár-Bereg, 4235 Biri | |||
Épület | |||
| Altípus | Családi | Építési év | 1960 év |
| Építési mód | Vályog | ||
Műszaki adatok | |||
| Fűtés | Konvektor | Komfort típus | Összkomfort |
| Víz | Telken | Gáz | Utcában |
| Villany | Telken | ||
Általános adatok | |||
| Parkolás | Telken parkoló | ||
Helyiségek | |||
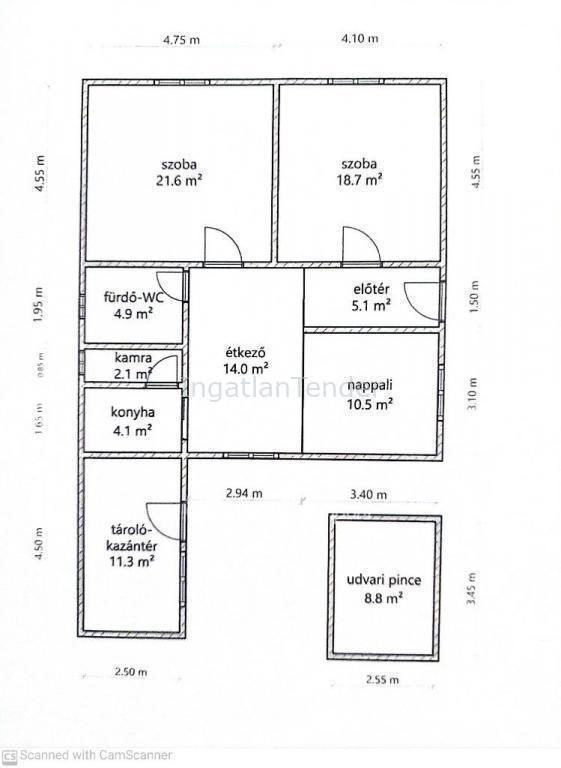
| Szobaszám | 2 | ||
Leírás | |||
Biriben nagyon csendes helyen elhelyezkedő, 65 nm alapterületű, 2 szoba, konyhás családi ház eladó. A ház egy zsákutca végén található. A tetőt pala fedi, a falazata vályog, a nyílászárók fából készültek és redőnnyel felszereltek. Két szoba, konyha, kamra, fürdőszoba, előtér és külön bejárattal nyári konyha részekből áll. Fűtése gáz konvektoros és van benne két cserépkályha is. A ház előtt zárt, beüvegezett terasz található. A nyári konyha szemben a házzal, külön bejárattal megközelíthető. Kamra tartozik hozzá, alapterülete 16 nm. A ház mellett pince, tárolók és egyéb melléképületek vannak. A telek 6000 nm nagyságú, fele akácfákkal van beültetve, ami biztosítja a téli tüzelőt. Elsősorban készpénzes vevőt várnak, mert 0 a HRSZ-a. Ha egy csendes helyen lévő családi házat keres, megtalálta. Amennyiben az ingatlan megvásárlásához CSOK Pluszt, Babaváró támogatást, illetve hitelt szeretne igénybe venni, sorban állás nélkül, ingyenes pénzügyi tanácsadással és teljes körű ügyintézéssel is segítjük Önt! 17500000 Ft Referencia szám: M296223 | |||


