Eladó, ház, Budapest, XIX. kerület
Cím | |||
| Magyarország, Budapest, 1196 XIX. kerület - Wekerletelep | |||
Épület | |||
| Építési év | 2000 év | ||
Műszaki adatok | |||
| Ingatlan belső állapota | Jó | Fűtés | Cirkó |
| Gáz | Van | Villany | Van |
| Csatorna | Van | ||
Általános adatok | |||
| Tájolás | délnyugat | ||
Helyiségek | |||
| Szobaszám | 7 | ||
Leírás | |||
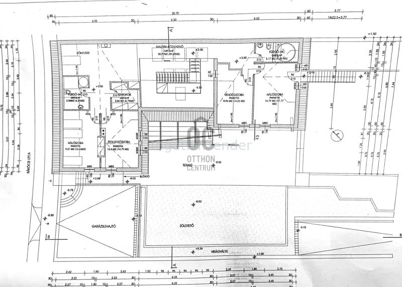
Wekerlén kínálom megvételre, ezt a korszerű élhető alaprajzú családi házat! -a szuterén szint alapterülete191m2, itt található a medencetér, a szauna, nagy méretű tárolók, és a két férőhelyes garázs beálló -a földszinten, mely 115m2 található a nagy méretű nappali étkező, egy mester háló fürdővel gardróbbal, és a háztartási helyiség wc-vel, mindegyik helyiség rendelkezik kijárattal a belső kertre, teraszra -az első szinten,mely 90m2 helyezkedik el a négy háló gardróbbal két fürdővel, és egy olvasószobával, ennek a szintnek a galériájáról letekinthetünk a földszinti térre -az épület meleg víz ellátását napkollektor segíti Ha olyan házat keres ahol kompromisszumok nélkül élhet, jöjjön el, nézze meg jövendő otthonát, várjuk szeretettel! Közművek: víz,villany,gáz,csatorna | |||


