Eladó, ház, Fejér, Aba
Cím | |||
| Magyarország, Fejér, 8127 Aba | |||
Épület | |||
| Építési év | 2025 év | ||
Műszaki adatok | |||
| Ingatlan belső állapota | Új építésű | Gáz | Van |
| Villany | Van | Csatorna | Van |
Általános adatok | |||
| Tájolás | kelet | ||
Helyiségek | |||
| Szobaszám | 4 | ||
Leírás | |||
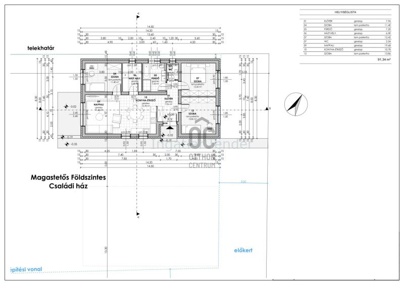
Aba csendes utcájában eladó egy 91,34 négyzetméter alapterülettel rendelkező 4 szobás ÚJÉPÍTÉSŰ családi ház! Referencia ház Abán megtekinthető!!! Most kezdődő építkezés. (Az előző építkezésből elkészült ház fotói láthatóak, amit referencia anyagként mutatunk be.) Az ingatlanhoz 543 négyzetméter kizárólagos használatú telekméret tartozik, amely nagyságának köszönhetően lehetőséget biztosít a kert szélesebb körű kihasználására. Rövid műszaki leírás: * Amerikai konyhás nappali étkezővel, 3 szoba, 1 fürdőszoba, külön mellékhelyiség, háztartási helyiség, terasz, 1 kocsibeálló * 91,34 nm hasznos alapterület + 12 nm-es terasz * Telek mérete: 543 nm * A ház Porotherm 30-as tégla falazattal épül * Szigetelés: 15 cm homlokzati hőszigetelés, 12 cm aljzatszigetelés, 25 cm padlásszigetelés * Fűtés: hőszivattyú, mindenhol padlófűtés * Tető: 30 fokos nyeregtető, fa födém, cseréppel fedett * Nyílászárók: 3 rétegű műanyag ablakok, fa beltéri ajtók * Bejárat ajtó: műanyag, több ponton záródó * Elektromos hálózat 3*16A * Burkolat: nappaliban, konyhában, közlekedő részen, fürdőszobában, mellékhelyiségben járólap, szobákban laminált parketta. Kiváló választás gyermekvállalás előtt álló fiatal párnak, időseknek, vagy gyermeküktől már külön élő középkorúaknak is ideális. Környék: A ház csendes, családi házas övezetben kiváló lokációval rendelkezik. Abán megtalálható bölcsőde, óvoda, általános iskola, gimnázium, orvosi rendelő, gyógyszertár járóbeteg szakrendelő, és kormányablak is. Buszmegálló is mindösszesen 550 m sétára van. Bővebb műszaki és egyéb információért várom jelentkezését! Amennyiben hitelre van szüksége, az Otthon Centrum az ország egyik legnagyobb és legmegbízhatóbb hitelközvetítőjeként, teljes körű és díjmentes hitel ügyintézéssel, áll ügyfelei rendelkezésére. Kérje személyre szabott ajánlatunkat! eladó, újépítésű, fejér megye, aba, családi ház, tégla, 91 m2, telek, nagycsaládos, 4 szoba, amerikai konyhás, hőszivattyú, Közművek: víz,villany,gáz,csatorna | |||


