Eladó, ház, Győr-Moson-Sopron, Mecsér
Cím | |||
| Magyarország, Győr-Moson-Sopron, 9176 Mecsér | |||
Épület | |||
| Építési év | 2023 év | ||
Műszaki adatok | |||
| Ingatlan belső állapota | Új építésű | Fűtés | Cirkó |
| Gáz | Van | Villany | Van |
| Csatorna | Van | ||
Általános adatok | |||
| Tájolás | dél | ||
Helyiségek | |||
| Szobaszám | 3 | ||
Leírás | |||
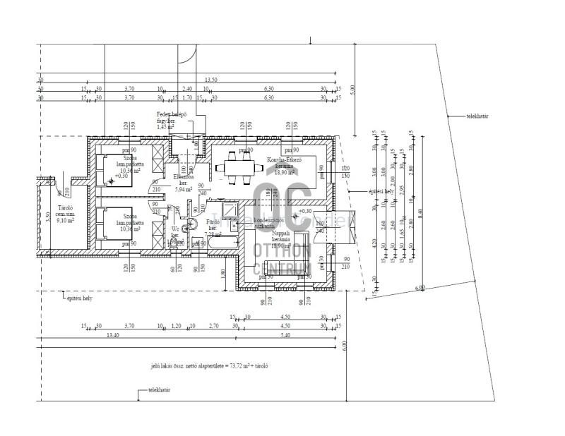
KIZÁRÓLAG AZ OTTHON CENTRUMNÁL, KIZÁRÓLAG NÁLAM! NAPPALI ÉS 2 SZOBA, NAGY TERASZ, TÁROLÓ!! Mecsér, Duna part, sok zöld, sarok telek!! IGEN tudom, mindegyik hirdetésben azt olvasod, hogy: Minőségi munka, Megbízható kivitelező, referenciamunkákkal stb, stb miközben az értékesítők jelentős része 2-3 éve dolgozik a piacon és nem is ez a szakmája.... Korszerű, energetikailag hatékony,92 nm, nappali és 2 szoba, tároló, terasz borzasztóan kedvező ár! 18 éve ezt csinálom, ezen kivitelezőt 14 éve ismerem, túl vagyunk együtt megannyi házon, magam is építőiparban nőttem fel, és ebből is diplomáztam, És IGEN, ÉRTEK HOZZÁ! Kérdéseiddel keressél bátran! Köszönöm Hitelre van szüksége? Az Otthon Centrum az ország egyik legnagyobb és legmegbízhatóbb hitelközvetítőjeként, teljes körű és díjmentes hitelügyintézéssel, biztosításkötéssel áll rendelkezésére! Kérje személyre szabott ajánlatunkat Kollégáinktól! Közművek: víz,villany,gáz,csatorna | |||


