Eladó Ház, Miskolc

Pénzügyek
(tájékoztató példa, nem minősül ajánlatnak)

Vételár
64 900 000 Ft

25% önerő
16 225 000 Ft

Lakáskölcsön (piaci)
48 675 000 Ft

Törlesztőrészlet 20 éves futamidővel 476 266 Ft

Az itt látható számok, jelen piaci körülmények között általánosan elérhető lehetőségek közül kerültek kiemelésre, így nem ajánlattétel, minden esetben pontos minősítés szükséges.
Cím
Magyarország, Borsod-Abaúj-Zemplén, 3530 Miskolc
Épület
AltípusCsaládiÉpítési év1970 év
Építési módTégla
Műszaki adatok
FűtésCirkóKomfort típusDupla komfort
Általános adatok
ParkolásTelken parkoló
Helyiségek
Szobaszám4
Leírás

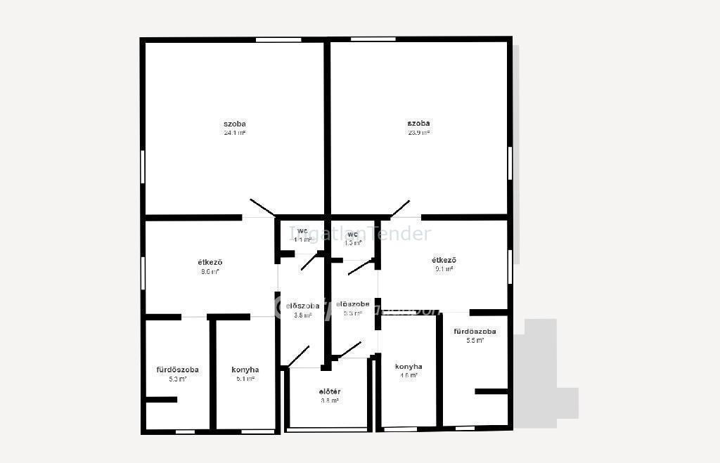
KIVÉTELES BEFEKTETÉSI LEHETŐSÉG Miskolc BELVÁROSÁBAN! Képzelje el, hogy a város szívében, egy CSENDES környéken birtokolhat egy ingatlant, amely számtalan lehetőséget kínál Önnek. Ezen a különleges helyen Eladó egy tágas, három külön lakrésszel rendelkező családi ház, amely nem csupán KIVÁLÓ otthon, hanem jövedelmező befektetés is lehet.

Az ingatlan földszintjén egy 58 nm-es kényelmes lakrész kapott helyet, amely két szobából, konyha-étkezőből és fürdőszobából áll. Az emeleti szinten további két lakrész található, egy 48 nm-es és egy 49 nm-es, mindkettő jól felszerelt fürdőszobával, külön wc-vel, konyhával, társalgóval és nagy hálószobával. Az emeleti lakrészek között igény szerint akár összenyitási lehetőséget is kínál az ingatlan, így IDEÁLIS több generációs együttéléshez.

Főbb paraméterek: -Szigetelt homlokzat (5 cm), födém (10 cm), műanyag szigetelt üveggel ellátott nyílászárók, -Napelemes rendszer, aminek köszönhetően közel 0 Ft az áramszámla, -Gázkazán radiátoros fűtéssel, villanybojlerek használati melegvízhez, hűtő-fűtő klíma minden lakrészben, -Kamera- és riasztórendszer, -Fedett kocsibeálló.

Az INGATLAN különleges elhelyezkedésének köszönhetően ideális turisztikai célú vendéglátáshoz, hosszútávú kiadásra vagy akár saját célra. A közelben találhatók a városi élet legfontosabb csomópontjai: a Városháztér, a történelmi avasi pincesor és a kulturális élet központjai, mint a Művészetek Háza és a Miskolci Nemzeti Színház. A környék GAZDAG vendéglátóhelyekben, éttermekben és bárokban.

Mindemellett KIVÁLÓ tömegközlekedési kapcsolatokkal is rendelkezik, biztosítva a könnyű elérhetőséget a közeli óvodákhoz, iskolákhoz, középiskolákhoz és intézményekhez. Az ingatlan per-, teher- és igénymentes, készen áll, hogy Öné legyen! Amennyiben felkeltette érdeklődését, és szeretne egy különleges lehetőséget kihasználni Miskolc belvárosában, ne habozzon, keressen meg bizalommal. OTP Banki hátterünknek köszönhetően finanszírozási igényekben (pl. Otthon Start Program, Babaváró, Falusi CSOK, CSOK Plusz, Lakáshitel, Személyi kölcsön stb.), illetve biztosítások tekintetében is díjmentesen, soron kívüli ügyintézéssel segítem ügyfeleimet! Referenciaszám: M298832

Eladó — Ház
  • Alapterület:120 m2
  • Telekterület:407 m2
  • Szobaszám:4
  • Hirdetés #:659220
  • Eladási ár
  • 64 900 000 Ft
    540 833 Ft/m2
Hirdető adatai

Fotózza le az alábbi kódot a telefonjával és más eszközön is láthatóvá válik a hirdetés.

Ingatlant keres?

Regisztráljon keresőként, akár kiemelésekkel

Használd fizetős szolgáltatásainkat!

Hasonló Hirdetések
^ Fel