Eladó Ház, Miskolc
Cím | |||
| Magyarország, Borsod-Abaúj-Zemplén, 3528 Miskolc Kisfaludy Károly utca | |||
Épület | |||
| Altípus | Családi | Építési év | 1987 év |
| Építési mód | Gázbeton, YTONG | ||
Műszaki adatok | |||
| Fűtés | Egyéb | Komfort típus | Összkomfort |
Általános adatok | |||
| Parkolás | Teremparkoló | ||
Helyiségek | |||
| Szobaszám | 4 | Félszobák száma | 1 |
Leírás | |||
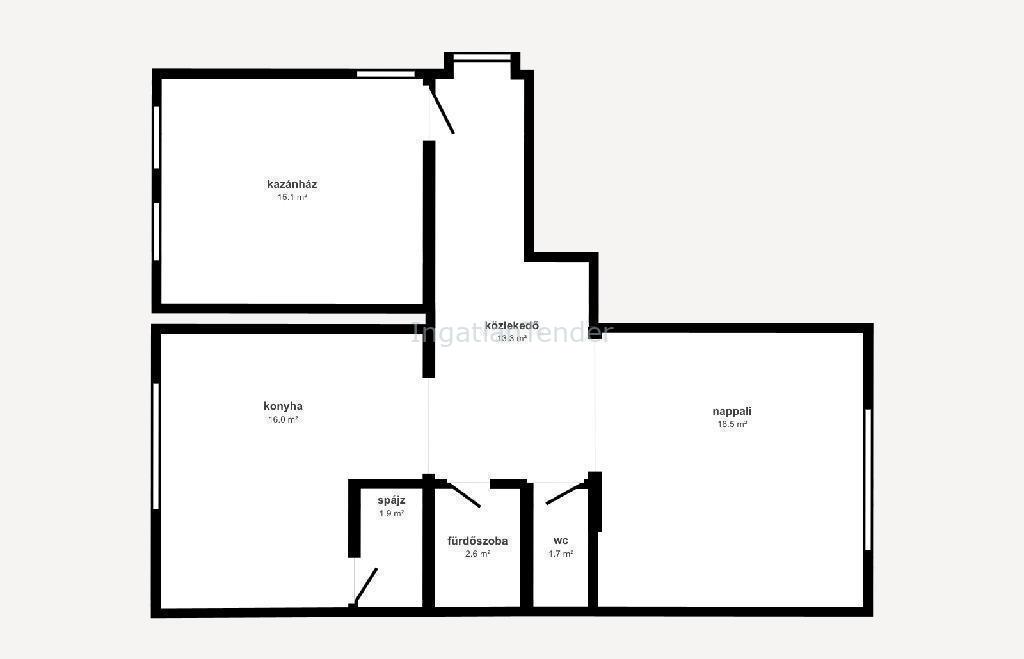
Kényelem és nyugalom egy tökéletes helyen!Eladásra kínálunk Miskolc egyik legkedveltebb, csendes és családias városrészében, a Martin-Kertvárosban egy 142 nm-es, eltolt szintes, tágas családi házat, 346 nm-es rendezett telken.Az 1987-ben épült ingatlan folyamatosan karbantartott és az évek során több felújításon esett át: új szigetelés, zsindelyes tető, kovácsolt vaskerítés, valamint a villanybojler, a vízaknában lévő vízvezeték és a szaniterek cseréje is megtörtént. A biztonságot 6 ponton záródó acél ajtó és riasztórendszer garantálja. A fűtésről gázkazán gondoskodik, de a vegyes tüzelésű kazán is üzembe helyezhető. Az új 20 nm-es fedett terasz és a fűthető garázs pedig még kényelmesebbé teszi a mindennapokat.A kiváló elhelyezkedésnek köszönhetően a belváros és az autópálya is percek alatt elérhető, így a mindennapi utazás gyerekjáték.Ez az ingatlan tökéletes választás családoknak, pároknak, vagy akár befektetőknek is. Rövid időn belül birtokba vehető, így akár azonnal elkezdheti a költözési előkészületeket. A bútorok igény esetén a megegyezés tárgyát képezhetik.OTP Banki hátterünkkel, finanszírozási megoldásokkal is segítjük ügyfeleinket. Az ingatlan megfelel az Otthon Start Program feltételeinek, így 3%-os lakáshitellel is megvásárolható! Jöjjön el, tekintsük meg együtt! Hívása során hivatkozzon az M312372 referenciaszámra! | |||


