Eladó ház, Ócsa
Cím | |||
| Magyarország, Pest, 2364 Ócsa | |||
Épület | |||
| Altípus | Családi | Építési év | 2026 év |
| Építési mód | Tégla | ||
Műszaki adatok | |||
| Fűtés | Hőszivattyú | ||
Általános adatok | |||
| Tájolás | délkelet | ||
Helyiségek | |||
| Szobaszám | 5 | ||
Leírás | |||
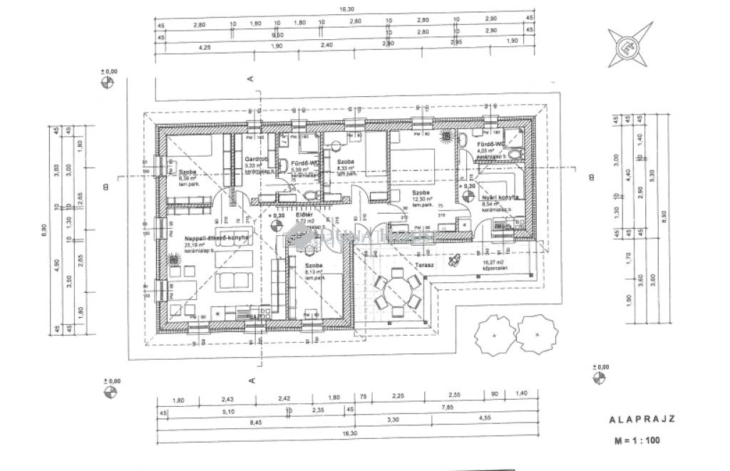
Új építésű ingatlanok Ócsa központi részén!A kiváló lokációban sorra kerülő beruházás 1 ikerházat (2 lakás) és 1 különálló házat foglal magában.A telek teljeskörűen közművesített, csatornarendszerre rákötött. Az önállócsaládi házhoz tartozik fedett terasz, kocsibeálló.Az ingatlanok 30% önerővel leköthetők.Várható átadás: 2026A ház fűtött hasznos lapterülete 91,37 m2, melyhez 16,27m2 fedett terasz tartozik. A belső elrendezés, válaszfalak még változtathatók az egyedi igényekhez igazodva. Jelenleg 4 hálószoba ,1 nappali-étkező, 2 fürdőszoba, 1 háztartási helység és egy nyári konyha tartozik. A belső elrendezés változtatható. Aki a tágasabb tereket kedveli, annak készült egy 3 szoba+ nappaliból álló terv is. A tetőszerkezetet úgy készítették, hogy ez a terv is megvalósulhasson. Az önálló családi ház belső útról közelíthető meg!ÁLTALÁNOS MŰSZAKI LEÍRÁS :A magánút hat méter szélességben murvázva lesz, olyan terepszint magassággal, mely lehetővé teszi a későbbi térkövezési munkákat.A magánút és az eladásra kínált telkek közé 3D kerítés kerül, 1 gépkocsi kapuval és 1 gyalogos kapuval.Az épület önálló közmű méréseket fog kapni (víz, csatorna, villamos megtáplálás)AZ ÉPÜLET ÁLTALÁNOS MŰSZAKI LEÍRÁSA:Lakás tervezett helyiségkiosztása:1. nappali-étkező-konyha 25,19 m2 kerámia 2. hálószoba 12,30 m2 laminált parketta 3. hálószoba 8,39 m2 laminált parketta 4. hálószoba 8,33 m2 laminált parketta 5. hálószoba 8,13 m2 laminált parketta 6. fürdő-WC 5,39 m2 kerámia 7. fürdő-WC 4,05 m2 kerámia 8. előtér 5,72 m2 kerámia 9. nyárikonyha 8,54 m2 kerámia 10. gardrób 5,33 m2 kerámia összesen: 91,37 m211. fedett terasz 16,27 m2 kőporcelánAz épület vasbeton sávalapra épített Porotherm 30 N+F tégla falazattal készült, kerámia áthidalókkal és adott pontokon a statikai terv szerint vasbeton gerendák kialakításával.A főfalakat vasbeton koszorú fogja össze.A válaszfalak 10-es ytong téglából készülnek.A tetőszerkezet úgynevezett szeglemezes szerkezet lesz, mely lehetővé teszi a válaszfalak tervtől eltérő építését.A tetőszerkezetre fólia, impregnált tetőléc, léc és végül betoncserép kerül.A bádogos szerkezetek strukturált alumíniumból készültek.Az épület 15 cm-es hőszigetelő rendszerrel lesz hőszigetelve.A nyílászárók kívül belül fehér színben gyártott 3 rétegű üvegezéssel készült szerkezetek lesznek.A 90×150-es ablakok műanyag redőnnyel (falsík alatti) és rovarhálóval lesznek szerelve.Belső ajtók Eurowood Dekor Extra kivitelből kerülnek beépítésre a Jafholz kínálatából.Az lakás mennyezete gipszkartonA mennyezet terv szerinti 25 cm hőszigetelést kap a padlástér felől.A padlástérre az épületben elhelyezett lenyitható lépcsőn keresztül lehet feljutni, a padlástér átadáskor csak részben lesz alkalmas tárolásra.Külön kérésre a padlásteret járhatóvá teszik.VILLAMOS HÁLÓZAT:Az épület a magánút elején jobb oldalon elhelyezett mérőhelyekről kapnak betáplálást.Az épület 1×32 A-es megtáplálást kap, valamint 3x20A H tarifás mérést a hőszivattyú és az oldalfali fűtő-hűtő klímaberendezések megtáplálásához.Az energia elosztását a lakáson belül egy-egy a bejáratnál elhelyezett kismegszakító tábla biztosítja.A gyalogos bejárókhoz csengőt és kaputelefon előkészítést biztosítunk (kábelezés, védőcsövezés), de magukat a készülékeket nem.Az erősáramú villamos hálózat kiépítését az alábbi berendezések részere biztosítjuk: világítási hálózat (5 áramkör, legrand Valena kapcsolókkal, oldalfali és mennyezeti lámpa kiállásokkal) dugaszoló aljzatok (5 áramkör, 35 szerelvény, általános aljzatok, mosógép aljzat, mosogatógép aljzat, TV aljzat stb.) gépészeti berendezések megtáplálása (fűtést vezérlő elektronika, 5 db oldalfali split klíma).A gyengeáramú hálózat kiépítését az alábbi rendszerek részére biztosítjuk: 4 db informatikai RJ45-ös aljzat 1 db TV kiállás koax kábellelAz internet elérését biztosító külső kábel részére védőcsövet fektettünk le a villamos fogyasztásmérők szekrényeitől az előtérben elhelyezésre kerülő kismegszakító tábláig, illetve a fogyasztásmérőktől a közterületen található első villanyoszlopig.ÉPÜLETGÉPÉSZET:A lakás ívóvízzel, szennyvízcsatornával, lesz ellátva.A csapadékvíz a föld alatti védőcsöveken a kertbe lesz elvezetve.Ívóvízhálózat:A lakás vízórája az utcafronton elhelyezett vízóra aknában lesz elhelyezve.Az aknától a lakásokig 25-ös műanyag (kpe) vezetékkel álltunk el.A hálózatba az alábbi elemek kerülnek elhelyezésre: szűrővel ellátott nyomáscsökkentő ötrétegű csövek préselt idomokkal fittingekFűtés:A lakás alapfűtését helyiségenként vezérlehető padlófűtés biztosítja, mely rendszereket levegő-víz hőszivattyú látja el fűtővízzel.Melegvíz készítés:A lakások melegvíz ellátását a hőszivattyú biztosítjaSzaniter berendezések: csapok maximálisan nettó 12.000 Ft/db-ig a MOFÉM kínálatából, a konyhai csap kivételével, a konyhai csap a konyhabútor tartozéka. kád kompletten lábakkal, lefolyóval maximum nettó 100.000 Ft/db-ig. w.c.-ék kompletten (2 csésze, 2 tartály, 2 ülőket) maximum nettó 80.000 Ft/db-ig az Alföldi kínálatából. kézmosók (lakásonként 2 db) maximum nettó 45.000 Ft/db-ig, az Alföldi kínálatából.FELÜLETKÉPZÉS:A falakat 2 réteg glettel és 2 réteg fehér HÉRA festékkel festikA burkoló anyagokat maximálisan nettó 5000 Ft/m2 áron a Zalakerámia kínálatából, a melegburkolást illetően és maximum nettó 5000 Ft/m2 áron a Jafholz kínálatából.Ócsa Budapesttől mindössze autóval 30 perc távolságra van. A helyiség infrastruktúrája fejlett, tömegközlekedése alkalmas a napi szintű Budapestre való munkába járásra. Spar, bank, posta, a közelben. Teljeskörű hitelügyintézéssel és akár ügyvédi szolgáltatással állunk rendelkezésére!Várom megtisztelő hívását! Referencia szám: HZ022932 | |||


