Eladó, ház, Pest, Budakeszi

Pénzügyek
(tájékoztató példa, nem minősül ajánlatnak)

Vételár
259 000 000 Ft

25% önerő
64 750 000 Ft

Lakáskölcsön (piaci)
194 250 000 Ft

Törlesztőrészlet 20 éves futamidővel 1 900 660 Ft

Az itt látható számok, jelen piaci körülmények között általánosan elérhető lehetőségek közül kerültek kiemelésre, így nem ajánlattétel, minden esetben pontos minősítés szükséges.
Cím
Magyarország, Pest, 2092 Budakeszi
Épület
Építési év2025 év
Műszaki adatok
Ingatlan belső állapotaÚj építésűGázVan
VillanyVanCsatornaVan
Általános adatok
KilátásPanorámásTájolásdélnyugat
Helyiségek
Szobaszám5Félszobák száma1
Leírás

Az ingatlan jelenleg szerkezetkész állapotban van: elkészült a vízszigetelés, a belső lépcső, a válaszfalak, megtörtént a tereprendezés és az esővíz elvezetés is. A hirdetésben megadott ár erre az állapotra vonatkozik.

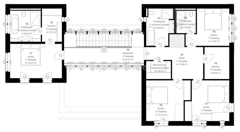
Budakeszi egyik újonnan épülő, zöldövezeti részén kínálunk eladásra egy szerkezetkész családi házat, közvetlenül a Pilisi Parkerdő szomszédságában. A mamutfenyők árnyékában épülő otthon ideális választás lehet mindazoknak, akik nyugalomra vágynak, mégis szeretnének közel maradni Budapesthez. Az M1 és M7 autópálya gyorsan elérhető, a környéken pedig minden fontos bolt, szolgáltatás kényelmesen megtalálható. A 268 m²-es épület egy 765 m²-es telken helyezkedik el, ahonnan az emeletről lenyűgöző panoráma nyílik a Budai-hegyekre és az Erzsébet-kilátóra.

A kivitelezés folyamatosan zajlik, szakszerű FMV és tervezői művezetéssel. Várhatóan 2025 nyarára emelt szerkezetkész állapotot ér el, amely tartalmazza:

- a külső nyílászárók beépítését - a gépészetet - az elektromos hálózatot - aljzatbetont, vakolást, hőszigetelést Ennek az állapotnak az irányára: 379 millió Ft

A kulcsrakész állapot várhatóan 2026 első negyedévre készül el, tartalmazni fogja többek között:

- külső tégla borítás plusz színezés - hideg- és melegburkolatokat - szanitereket, korlátokat - festést, hőszivattyút, hővisszanyerős szellőztetőt - pergolákat

A kulcsrakész ár: 480 millió Ft (Személyre szabható műszaki tartalommal, egyéni egyeztetés alapján.)

Térkialakítás – átgondolt, kényelmes elrendezés

Földszint: 50 m²-es, dupla belmagasságú nappali · 30 m²-es konyha-étkező · dolgozószoba · vendég WC · előszoba · kétállásos, 50 m²-es garázs

Emelet: Tágas szülői lakosztály (hálószoba, gardrób, fürdő) · 3 további szoba · 2 fürdőszoba · mosókonyha · gardrób · infraszauna · panorámás függőfolyosó

Műszaki tartalom – minőség kompromisszumok nélkül

Szerkezet: Masszív vasbeton alapozás és födém · Silka falazat hőhídmegszakítással · erősített vasbeton pillérek · előkészített tetőszerkezet napelemekhez

Hőszigetelés: 20 cm grafitos EPS szigetelés a falakon+ 30 cm cellulóz a sátor tetőn és 20 cm PIR ( jóval az előírások felett ) a lemezekkel burkolt tetőn

Nyílászárók: Prémium fa-alumínium ablakok · 3 rétegű üvegezés · motoros zsalúziák · pergolák

Gépészet és okosotthon: Padlófűtés, mennyezethűtés hőszivattyúval · hővisszanyerős szellőzés · kandalló-előkészítés · okos vezérlés előkészítés

Érdeklődés esetén forduljon hozzám bizalommal! Rugalmasan megtekinthető, minden részletet szívesen egyeztetek.

Extrák: panoráma

Közművek: víz,villany,gáz,csatorna

Eladó — Ház
  • Alapterület:268 m2
  • Telekterület:765 m2
  • Szobaszám:5 + 1 fél
  • Hirdetés #:596689
  • Eladási ár
  • 259 000 000 Ft
    966 418 Ft/m2

Fotózza le az alábbi kódot a telefonjával és más eszközön is láthatóvá válik a hirdetés.

Ingatlant keres?

Regisztráljon keresőként, akár kiemelésekkel

Használd fizetős szolgáltatásainkat!

Hasonló Hirdetések
^ Fel