Eladó, ház, Pest, Szigethalom
Cím | |||
| Magyarország, Pest, 2315 Szigethalom | |||
Épület | |||
| Altípus | Ikerház | Építési év | 2025 év |
Műszaki adatok | |||
| Ingatlan belső állapota | Új építésű | Villany | Van |
| Csatorna | Van | ||
Általános adatok | |||
| Tájolás | kelet | ||
Helyiségek | |||
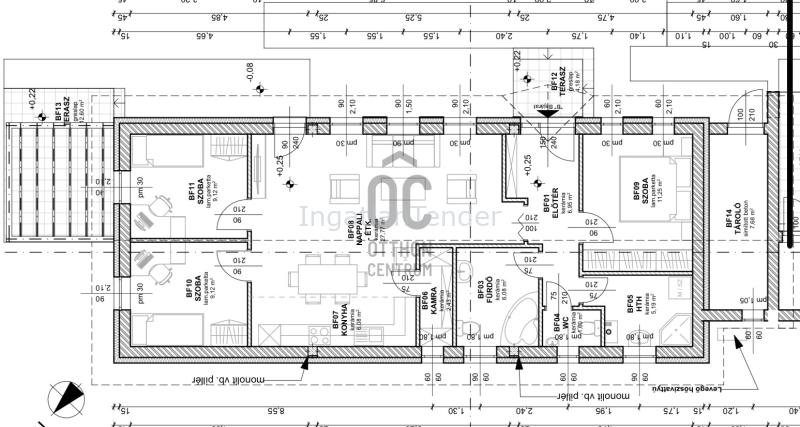
| Szobaszám | 4 | ||
Leírás | |||
HÁZ: - 2025-ben épül - minőségi anyagokból - Porotherm tégla + 15 cm dryvit szigetelés - cserép tetőfedés, műanyag nyílászárók - hőszivattyú fűtés rendszer + padlófűtés - Hideg-meleg burkolatok választhatók - földszintes, remek elosztású , napfényes - riasztó előkészítés - saját tároló - részben fedett terasz TELEK: - 350 nm saját telek - autó beállási lehetőség - elektromos kapu előkészítés - betonozott járdák és beálló - körbe kerítve, utcafronton lábazat + fakerítés Elhelyezkedés: - Budapesttől 25 percre - Iskola, óvoda, bevásárlási lehetőség valamint a HÉV pár perc sétára REFERENCIA HÁZAK MEGTEKINTHETŐK! HITEL ÉS CSOK igényelhető! Minden hivatalos ügyintézésben segítünk! 20 %-TÓL MÁR MOST FOGLALHATÓ! ÁTADÁS: 2026-05 Közművek: víz,villany,csatorna | |||


