Eladó Ház, Piliscsaba
Cím | |||
| Magyarország, Pest, 2081 Piliscsaba | |||
Épület | |||
| Altípus | Családi | Építési év | 1996 év |
| Építési mód | Tégla | ||
Műszaki adatok | |||
| Fűtés | Cirkó | ||
Általános adatok | |||
| Tájolás | délnyugat | ||
Helyiségek | |||
| Szobaszám | 5 | Félszobák száma | 3 |
Leírás | |||
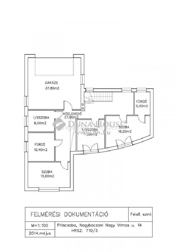
Toscanai hangulatot megidéző luxus ingatlan! Személyzeti lakással! Piliscsabán, erdő közeli környezetben eladó ez a 6000nm-es telken lévő családi ház. Az ingatlan 1996-ban épült, 2010-ben felújították. A lakó ingatlan 400nnm-es, 3 szinten. Az alsó szinten,- melyhez közel 200nm-es panorámás terasz tartozik - kondi terem, kazánház, fürdőszoba, szauna illetve egy 60nm-es külön bejáratú szolgálati lakás is tartozik. Egy szinttel feljebb - a terep adottságoknak megfelelően kialakítva - egy dupla beállású garázs, nappali - kandallóval - nagy terasszal. Hatalmas tágas konyha, étkezővel illetve egy kamra is kialakításra került. Ezen a szinten még 2 hálószoba és egy fürdőszoba is található. Az emeleten egy szép hall, 3 hálószoba és 2 fürdőszoba. Külön épületben elhelyezkedő 200nm-es wellness központ, igazi kikapcsolódást nyújt a rohanó hétköznapokon. A házat igényes egyedi Spanyol burkolatokkal látták el, a kert valódi botanika, a kerti járdákat gránittal kővel borították. Ha igényes házat keres, ne keressen tovább. VEVŐINKNEK MINDEN SZOLGÁLTATÁS INGYENES! Hitel Centrumunk banksemleges tanácsadással, államilag támogatott kamatozású hitelkonstrukciókkal és teljes körű ügyintézéssel áll rendelkezésükre térítésmentesen! A vásárláshoz Családi Otthonteremtési Kedvezmény (CSOK) is igényelhető a megfelelő feltételekkel! Hívjon, hogy ez az igényes belvárosi lakás az Öné legyen! 1200000 EUR Érd.: Papp Gyula 06 30 6810899 Referencia szám: HZ516866 | |||


