Eladó Ház, Ráckeve
Cím | |||
| Magyarország, Pest, 2300 Ráckeve | |||
Épület | |||
| Altípus | Családi | Építési év | 2024 év |
| Építési mód | Tégla | ||
Műszaki adatok | |||
| Fűtés | Egyéb | Komfort típus | Összkomfort |
Általános adatok | |||
| Parkolás | Teremparkoló | ||
Helyiségek | |||
| Szobaszám | 4 | ||
Leírás | |||
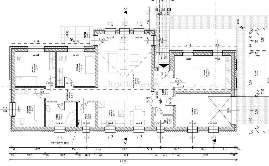
Pest Vármegye, Ráckeve dinamikusan fejlődő részén 113 nm-es önálló családi ház garázzsal eladó. A tégla falazatú ingatlan egy 807 nm-es telken helyezkedik el. A házban található négy szoba, egy amerikai konyhás nappali, fürdőszoba wc-vel, külön wc és egy kamra. Az ingatlan kulcsra készen kerül átadásra. Vevő ügyfeleinket díj mentes hiteltanácsadással és a piaci hiteleknél kedvezőbb hitelekkel lepjük meg. További kérdéssel forduljon hozzám bizalommal. | |||


