Eladó Ház, Sarud
Cím | |||
| Magyarország, Heves, 3386 Sarud | |||
Épület | |||
| Altípus | Családi | Építési év | 1978 év |
| Építési mód | Gázbeton, YTONG | ||
Műszaki adatok | |||
| Fűtés | Konvektor | Komfort típus | Összkomfort |
| Víz | Telken | Gáz | Telken |
| Villany | Telken | ||
Általános adatok | |||
| Parkolás | Telken parkoló | ||
Helyiségek | |||
| Szobaszám | 4 | Félszobák száma | 1 |
Leírás | |||
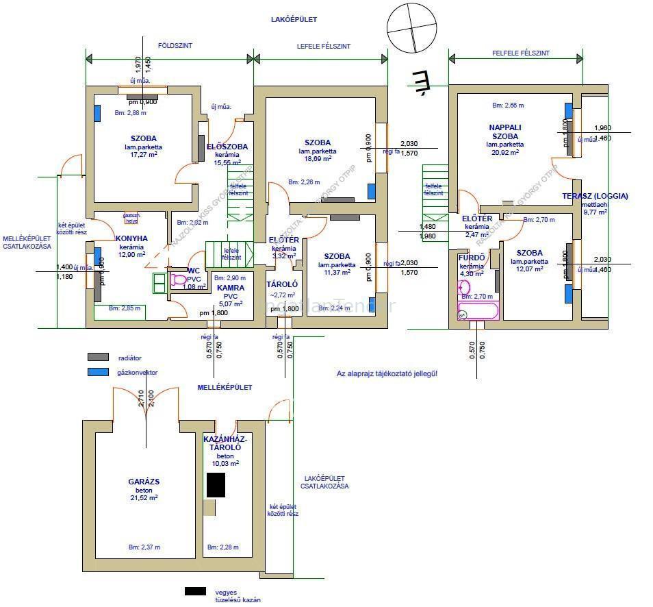
SARUDON, A TISZA-TÓ EGYIK LEGNÉPSZERŰBB TELEPÜLÉSÉN ELADÓ EGY JÓ ÁLLAPOTBAN LÉVŐ, 127,73 M2 HASZNOS ALAPTERÜLETŰ, FALUSI CSOK-RA ALKALMAS, 4+1 SZOBÁS, ÖSSZKOMFORTOS, ÖSSZKÖZMŰVES, 3 FÉLSZINTES, SZINTELTOLÁSOS CSALÁDI HÁZ, 1815 M2-ES RENDEZETT TELEKKEL, A TÓTÓL 2,9 KM-RE!!! A lakóépület 1978-ban épült, 2 m-es beton alappal, kazincbarcikai szilikát falazattal, födém vasbeton, tetőn hullámpala fedés, homlokzata kőporozott. Felújítások kb. 10 éve: nyílászárók cseréje műanyagra a legtöbb helyen, szobákban új laminált padló. Extrák: kamerarendszer (1 terrás, 4 kamera, követő fix, rögzítő), riasztó (távfelügyelethez bekötve). A telek körbe van kerítve, aszfaltozott útról, jól megközelíthető, udvara rendezett, rajta: 2 eperfa, kerti csap, melléképületek (nyári konyha, garázs, ólak). A teljes bútorzat és berendezés az ár részét képezi (a személyes tárgyak kivételével). Tulajdoni lapja tiszta (per-, teher-, és igénymentes)!!! Ingatlanvásárlás szempontjából kitűnő választás, jó befektetés, alkalmas lakóháznak, apartmannak, üdülőnek egyaránt. Az ingatlan azonnal költözhető, ideális környezet lehet gyermekes családoknak, de a nyugalomra, pihenésre vágyó idősebb korosztálynak is, vízközelsége miatt elsősorban a Tisza-tó szerelmeseinek, horgászoknak ajánljuk!!! A CSOK mellett a településen a Falusi CSOK is igénybe vehető, a ház arra alkalmas, melynek teljes körű ügyintézését és az esetleges banki finanszírozás előkészítését díjmentesen vállaljuk!!! Helységek: földszint: szoba, előszoba, konyha, WC, kamra (51,87 m2); lefele félszint: 2 szoba, tároló, előtér (36,1 m2); felfele félszint: szoba, nappali, fürdő, előtér (39,76 m2) + terasz (loggia, 9,77 m2); garázs és tároló (31,55 m2). Fűtés: vegyes tüzelésű kazán radiátorokkal, plusz a legtöbb helyiségben gázkonvektor is. Melegvíz: villanybojler. Közművek: víz, villany, gáz, szennyvíz, internet (Telekom). A telek területe: 1815 m2. Közelben: Kossuth L. utca 300 m, központ 1 km-re, Tisza-tó 3 km-re. Sarud közvetlenül a Tisza-tó mellett fekvő Heves megyei település, Tiszanána és Újlőrincfalva között. A településen nagy az idegenforgalom, kiváló a szabadvízi strandja, de működik itt hajókikötő, Aquaglide Élménypark és Vízi játszótér, Tisza-tavi miniZOO, HuculUdvar Lovasközpont is. Infrastrukturális ellátottság megfelelő, van óvoda, gyógyszertár, élelmiszer üzlet, orvosi rendelő, posta, különböző szolgáltatások. Az ingatlantól az M3-as autópálya 30 km-re, Tiszafüred 19 km-re, Poroszló 9 km-re!!! A legközelebbi nagyobb infrastruktúrával rendelkező város Tiszafüred, ahol a távolsági busz és vonatközlekedés kiváló (pályaudvarok), a város közúti megközelíthetősége szintén, ahol van: óvoda, általános iskola bölcsőde, óvoda, általános iskolák, gimnázium, szakközépiskola, szakmunkásképző, gyógyszertárak, nagy áruházak (TESCO, LIDL, SPAR, Penny), szakorvosi ellátások, fizioterápiás szolgáltatások, benzinkutak (MOL, SHELL, OIL), hivatalok, járási hivatal, okmányiroda. Amennyiben hirdetésem felkeltette érdeklődését, keressen bizalommal bármikor (hétvégén is!), lehetőleg a +36 30 299 74 16 telefonszámon, ha nem tudom azonnal felvenni, visszahívom, ha a számát kijelzi. További kérdéseire is készséggel válaszolok. A tiszafüredi OTP Ingatlanpont és OTP Pénzügyi Pont teljes körű ügyintézéssel áll az eladók és a vevők rendelkezésére!!! A kínálatunkból választott ingatlan finanszírozásához kedvezményes hitelkonstrukciókat kínálunk! Az adásvételi szerződés megkötéséhez - igény szerint - megbízható ügyvédi közreműködést biztosítunk, és segítséget nyújtunk az adásvételhez kapcsolódó ügyek intézéséhez, hiteligényléshez és CSOK-hoz teljes körűen (igazolások igénylése, nyomtatványok kitöltése, benyújtása, kérelem gondozása stb.). A közművek átírását is elvégezzük az eladó és a vevő helyett! Irányár: 35 millió Ft Referenciaszám: M302974 Referencia szám: M302974 | |||


