Eladó Ház, Szentes
Cím | |||
| Magyarország, Csongrád, 6600 Szentes | |||
Épület | |||
| Altípus | Családi | Építési év | 1960 év |
| Építési mód | Vegyes | ||
Műszaki adatok | |||
| Fűtés | Cirkó | Komfort típus | Komfort nélküli |
Általános adatok | |||
| Parkolás | Telken parkoló | ||
Helyiségek | |||
| Szobaszám | 4 | Félszobák száma | 1 |
Leírás | |||
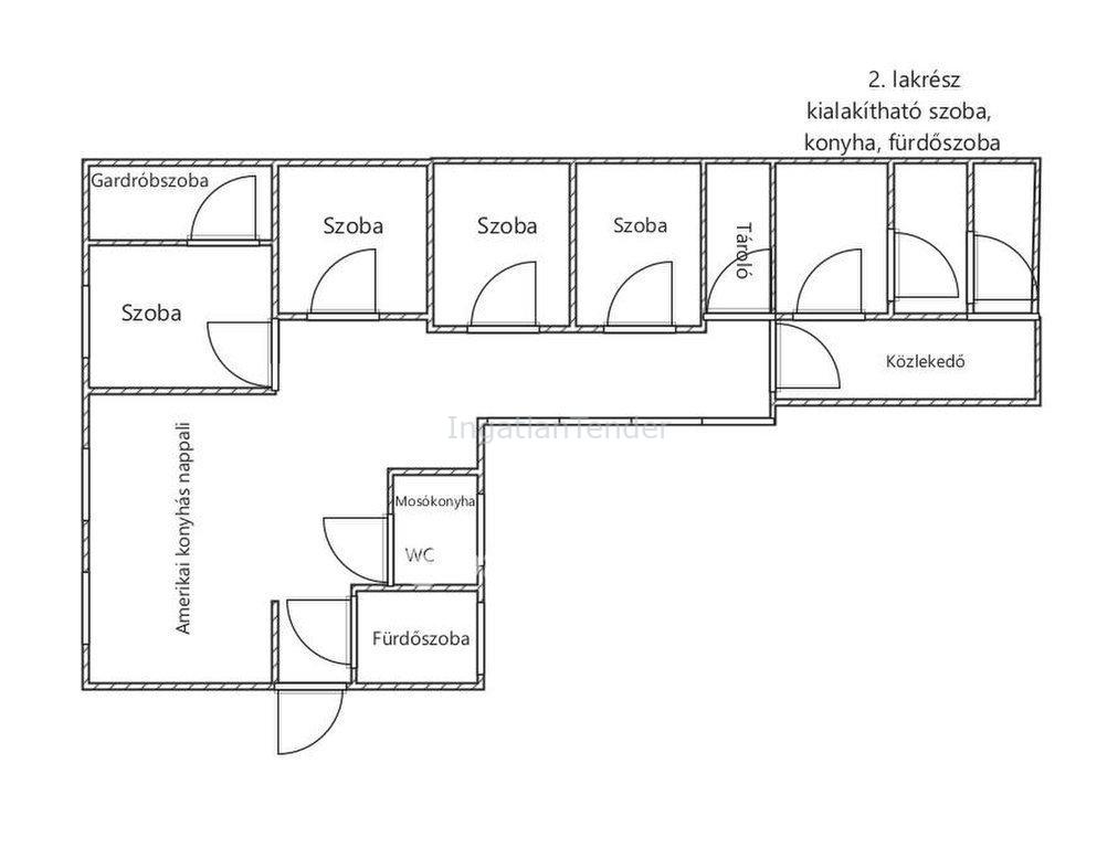
*** Csak az OTP Ingatlanpont kínálatában eladó Szentesen, közel a városközponthoz egy 701 nm-es telken elfekvő 150 nm-es, amerikai konyhás + 4 szobás családi ház, ahol a felújítási munkálatok egy része megtörtént, befejezése az új tulajdonosra vár. Milyen jó, hogy ÖN a saját ízlésére formálhatja! Hatalmas terek, kényelmes méretű helyiségek várják! Új, hőszigetelt műanyag nyílászárók vannak beépítve. A gázkazánnal történő fűtési rendszer kiépítése is megtörtént. A házhoz épített 25 nm-es külön bejáratú lakrészben egy szoba, konyha és fürdőszoba alakítható ki. FONTOS! Készültségi állapotát tekintve hitelfelvételre nem alkalmas, csak készpénzes vásárlóknak ajánljuk! Amennyiben mégis hitelt szeretne a vevő, úgy csakis extra ingatlanfedezet bevonásával oldható meg! Amennyiben az OTP Ingatlanpont kínálatából választ, számíthat szakmai támogatásunkra a teljes vételi folyamat során az adásvételi szerződés megkötésétől a hitel-ügyintézésen át az ingatlan átadásáig. Ajánlom minden kedves ügyfelem részére az OTP Bank által közvetített Babaváró, CSOK PLUSZ, Otthon Start Hitelprogram vagy egyéb kölcsönök intézését. Az OTP Ingatlanpont kedvezményes pénzügyi konstrukciókkal áll ügyfelei rendelkezésére, és VIP-szolgáltatást nyújt az OTP-hiteltermékek, ügyintézésben. Kedvező hitelajánlatokkal (BABAVÁRÓ hitel, piaci hitel, és szabadfelhasználású hitel) várjuk jelentkezését. Számos konstrukció közül választhatnak. Irodáink Szentes, Petőfi u. 12. a buszmegálló felől és Csongrád, Fő u. 54. szám alatt várja a személyes érdeklődőket. ***VÁLASSZUK KI EGYÜTT AZ ÖNNEK LEGMEGFELELŐBB AJÁNLATOT! BANKI SORBAN ÁLLÁS NÉLKÜL! *** Referencia szám: M320027-ITE | |||


