Eladó lakás, Debrecen

Pénzügyek
(tájékoztató példa, nem minősül ajánlatnak)

Vételár
222 000 000 Ft

25% önerő
55 500 000 Ft

Lakáskölcsön (piaci)
166 500 000 Ft

Törlesztőrészlet 20 éves futamidővel 1 629 137 Ft

Az itt látható számok, jelen piaci körülmények között általánosan elérhető lehetőségek közül kerültek kiemelésre, így nem ajánlattétel, minden esetben pontos minősítés szükséges.
Cím
Magyarország, Hajdú-Bihar, 4032 Debrecen - Egyetemváros
Épület
Építési év2020 évÉpítési módTégla
Műszaki adatok
Emelet8FűtésHőszivattyú
Általános adatok
Tájolásdél
Helyiségek
Szobaszám3
Leírás

Egyetem Tower – Debrecen tetején, ez nem ingatlan – ez életstílus!

Ez nem csak egy lakás, ez státuszszimbólum. Az Egyetem Tower legfelső szintjén kínáljuk eladásra az utolsó elérhető lakást – és nem is akármilyet.

- 84 m² letisztult luxus + 38 m² privát terasz, - Páratlan panoráma, ami minden este lelépteti a Netflixet - Gépesített designer konyha, nappali, két háló, dupla fürdő, gardrób - Hőszivattyús mennyezeti hűtés-fűtés, padlófűtés – a kényelem új szintje - Wellness a tetőn: jakuzzi, medence, szauna, napozóterasz – privát, csak a lakóknak - 24/7 portaszolgálat, zárt parkoló, teljes biztonság - Ár: 210 millió Ft

Egyetlen ilyen lakás Debrecenben.

Eladó — Lakás
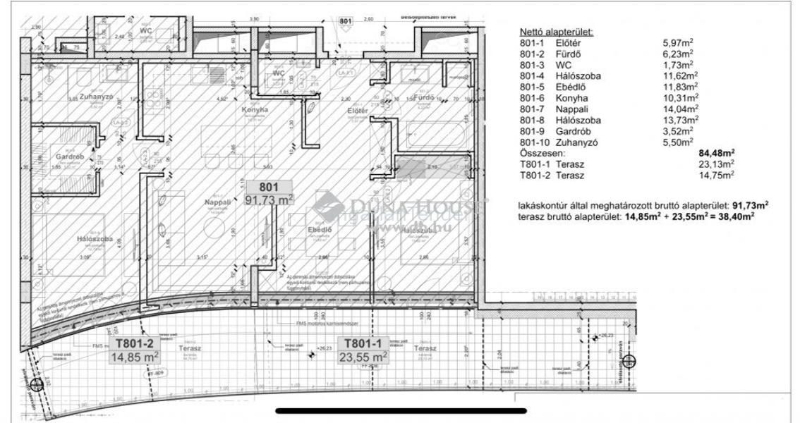
  • Alapterület:91 m2
  • Szobaszám:3
  • Hirdetés #:582472
  • Eladási ár
  • 222 000 000 Ft
    2 439 560 Ft/m2

Fotózza le az alábbi kódot a telefonjával és más eszközön is láthatóvá válik a hirdetés.

Ingatlant keres?

Regisztráljon keresőként, akár kiemelésekkel

Használd fizetős szolgáltatásainkat!

Hasonló Hirdetések
^ Fel