Eladó lakás, Herend
Cím | |||
| Magyarország, Veszprém, 8440 Herend | |||
Épület | |||
| Építési év | 2026 év | Építési mód | Tégla |
Műszaki adatok | |||
| Emelet | 1 | Fűtés | Hőszivattyú |
| Komfort típus | Összkomfort | ||
Általános adatok | |||
| Parkolás | Telken parkoló | Tájolás | délnyugat |
Helyiségek | |||
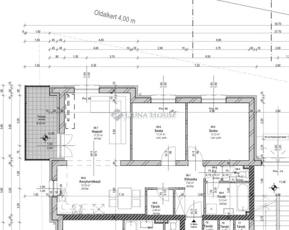
| Szobaszám | 3 | ||
Leírás | |||
*** Eladó Újépítésű ingatlanok Herend szívében minden karnyújtásnyira *** Megvételre kínálok Veszprém kedvelt agglomerációjában, újépítésű lakásokat. Herend, a világhírű porcelán hazája, ahol a nyugodt kisvárosi élet kényelme találkozik a mindennapi praktikumokkal. A társasház a város központjában helyezkedik el, pár perc sétára boltoktól, orvosi rendelőtől, gyógyszertártól, étteremtől, játszótértől és gondozott parktól. Herend, Veszprém közelsége miatt ideális választás azoknak is, akik csendes, biztonságos környezetben élnének, mégis gyorsan elérnék a nagyobb várost. Kiváló minőség, modern kialakítás, zárt parkos környezet! Nagyszerű elhelyezkedéssel, 22 lakásos, új építésű társasház kerül kialakításra, sorompóval zárt területen, felszíni gépkocsi-beállókkal, tárolókkal. A projekt célja olyan korszerű, energiatakarékos otthonok létrehozása, amelyek hosszú távon értékállóak maradnak. A lakásokhoz térkövezett, udvari beálló vásárolható, amely vételára bruttó 1 000 000 Ft. Minden szinten, minden lakáshoz tároló helyiségek kerültek kialakításra, amit most AJÁNDÉKBA ad a kivitelező. Legfontosabb műszaki jellemzők, Falazat: Külső főfalak: 30 cm-es Leier N+F falazóelem, falazóhabarccsal vagy ragasztóhabbal Lakáselválasztó falak: Leiertherm 25/30 AKU MD hanggátló téglafal Nyílászárók: Műanyag, legalább 5 kamrás, 82 mm-es, 3 rétegű üvegezés Kiváló hő- és hangszigetelés, redőny előkészítés minden nyílászárónál (vakolt rejtett redőnytokok, elektromos kiállással) Fűtés-hűtés: Fűtésről energiatakarékos hőszivattyús padlófűtés, hűtésről fan-coil rendszer gondoskodik, helyiségenként szabályozva. Burkolatok: Vevő által választható, I. osztályú hideg- és melegburkolatok, ár kerettel Fürdőszobákban minőségi szaniterek, RAVAK zuhanykabin vagy kád Homlokzati szigetelés: 15 cm vastag EPS hőszigetelés, nemesvakolat befejezéssel Tetőfedés: Antracit színű betoncserép, korszerű víz- és páraelvezetéssel Hang- és hőszigetelés: Valamennyi födém, válaszfal és nyílászáró kialakítása megfelel a korszerű épületenergetikai előírásoknak Előnyök röviden: Zárt, biztonságos, parkosított udvar Saját gépkocsi-beálló Minden lakáshoz külön tároló, mely benne van az árban Modern hűtés-fűtés Választható burkolatok és szaniterek Kiváló hang- és hőszigetelés Ideális saját részre és befektetésnek is Amennyiben hirdetésem felkeltette érdeklődését, valamint további információra van szüksége, várom hívást. „A hirdetésben szereplő FIX 3%-os lakáshitel részét képező támogatásokat Magyarország Kormánya nyújtja.” | |||


