Eladó Lakás, Szentes
Cím | |||
| Magyarország, Csongrád, 6600 Szentes | |||
Épület | |||
| Építési év | 2025 év | Építési mód | Tégla |
Műszaki adatok | |||
| Emelet | Földszint | Fűtés | Egyéb |
| Komfort típus | Összkomfort | ||
Általános adatok | |||
| Közös költség | 1 Ft | Parkolás | Teremparkoló |
Helyiségek | |||
| Szobaszám | 1 | Félszobák száma | 2 |
Leírás | |||
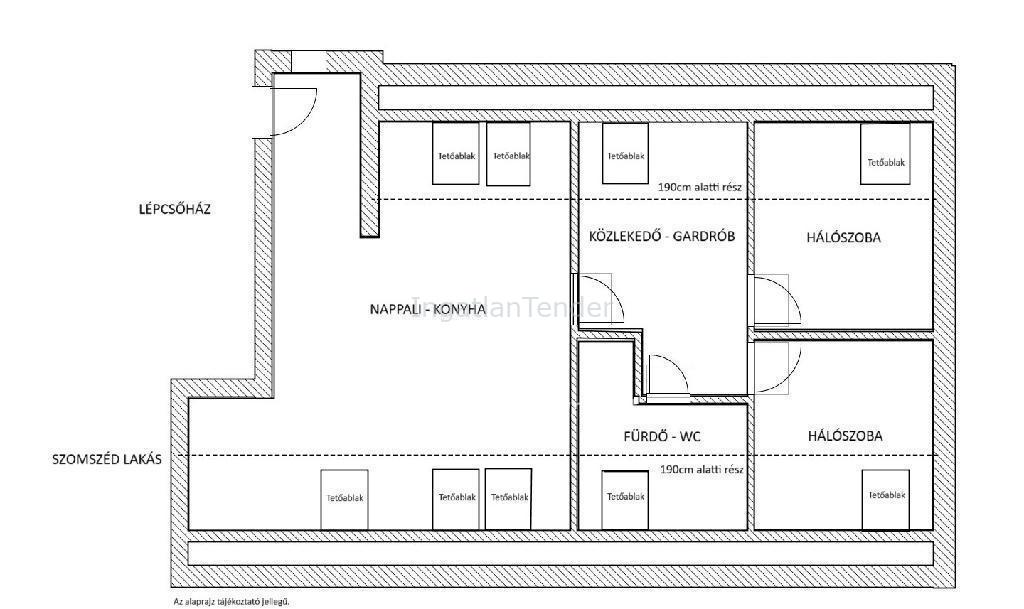
Szentesi, zöldövezeti, energiahatékony újépítésű lakások leköthetők --- az OTP Ingatlanpontnál! Már csak 4 lakás elérhető! Modern, elegáns megjelenés, korszerű anyagok és kellemes, zöld környezet jellemzik ezt a projektet. A parkosított telken két lakóház (földszint, emelet, tetőtér) valamint garázsok kerültek elhelyezésre. Az egyik lakóépületben hat lakás, a másikban nyolc lakás kap helyet. A lakásokba zárt lépcsőházon keresztül juthatunk. A tetőéri lakások alapterülete 82,8m2, melyből a ?hasznos? (190cm magasság feletti rész) 53,56m2. A tágas amerikai konyhás nappali mellett 2 hálószoba, közlekedő ? gardrób, valamint fürdőszoba áll rendelkezésre. A fűtést és a melegvizet hőszivattyú fogja ellátni, padlófűtéssel, lakásonként egyedi mérési lehetőséggel. Az ár a kulcsrakész állapotra vonatkozik. A lakásokhoz garázs is vásárolható. Ha számít Önnek az egyedi, elegáns környezet, valamint az alacsony fenntartási költségek, akkor ne gondolkozzon tovább! További információért hívjon bizalommal! Az OTP Ingatlanpont teljes körű ügyintézéssel áll az eladók és vevők rendelkezésére. A kínálatunkból választott ingatlan finanszírozásához kedvezményes hitelkonstrukciót biztosítunk. Az OTP Banknál elérhető Babaváró, falusi CSOK, CSOK Plusz hitel és egyéb kölcsönök intézését díjmentesen vállaljuk. Az adásvételi szerződés megkötéséhez igény szerint ügyvédet biztosítunk. Érdeklődni: Lázár Krisztina Referencia szám: M293794-ITE | |||


