Eladó Söröző, Mezőkovácsháza

Cím
Magyarország, Békés, 5800 Mezőkovácsháza
Épület
AltípusSzórakozóhelyÉpítési év1986 év
Műszaki adatok
FűtésKonvektorVízTelken
GázTelkenVillanyTelken
Leírás

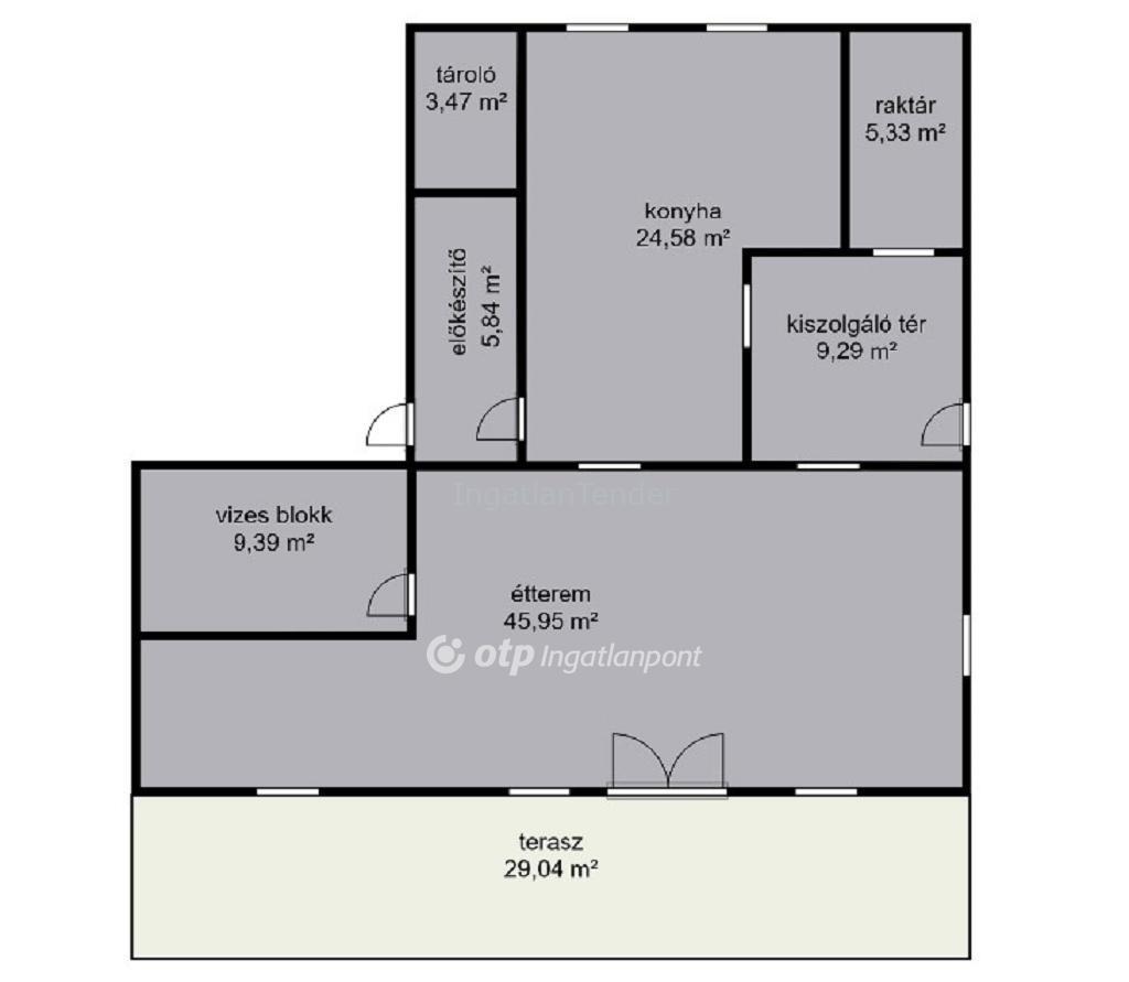
*** VÁLLALKOZÓK FIGYELEM *** Szeretne egy jól működő vállalkozáshoz jó helyet találni? Mezőkovácsházán kedvező ár/érték arányú vendéglő eladó a strandnál. A 104 m2-es ingatlanban 50 fő, a teraszon további 12 fő kényelmesen kiszolgálható. A konyha felújítandó, az alapok adottak, van gáz, ipari áram, pára elszívó stb.

A fürdő gyógyvizének hőmérséklete a környéken egyedülállóan magas, 72 fokos. A fürdőt tápláló termálvíz magas ásványianyag tartalmú, nátrium-hidrogénkarbonátos, kloridos, jodidos, fluoridos, szulfidos ásványvíznek minősül, magas metabórsav és metakovasav tartalommal. Főként mozgásszervi betegségek, nőgyógyászati panaszok esetén javasolt, valamint kiváló stresszoldó hatása is van.

A városi rendezvények a vendéglő melletti területen kerülnek megrendezésre, alkalmi rendezvények lebonyolítására kiváló. Az ingatlan kiváló hosszútávú befektetési lehetőség. Keressen bizalommal, ne hagyja ki ezt a lehetőséget. Az OTP Ingatlanpont a banki háttérrel eladóink, és vevőink igényeit teljeskörűen ki tudja szolgálni, az eladástól a vevői finanszírozásig. Hitel igénylés esetén akár egyedi kamatkedvezménnyel, jogosultság esetén az állami támogatásokhoz kapcsolódó felvilágosítással, teljeskörű pénzügyi tanácsadással és ügyintézéssel állunk ügyfeleink rendelkezésére.

Referencia szám: M309192-ITE

Eladó — Vendéglátás
  • Alapterület:104 m2
  • Hirdetés #:660601
  • Eladási ár
  • 17 000 000 Ft
    163 462 Ft/m2

Fotózza le az alábbi kódot a telefonjával és más eszközön is láthatóvá válik a hirdetés.

Ingatlant keres?

Regisztráljon keresőként, akár kiemelésekkel

Használd fizetős szolgáltatásainkat!

Hasonló Hirdetések
^ Fel