Eladó telek, Budapest 20. ker.
Cím | |||
| Magyarország, Budapest, 1204 XX. kerület Nagysándor József utca | |||
Műszaki adatok | |||
| Víz | Telken | Gáz | Telken |
| Villany | Telken | Csatorna | Telken |
Leírás | |||
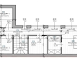
Építési telek eladó Budapest XX. kerület, Nagysándor József utca Eladásra kínálunk egy kiváló adottságokkal rendelkező építési telket Budapest XX. kerületének kertvárosi részén, a Nagysándor József utcában. A telek érvényes építési engedéllyel rendelkezik, mely alapján egy modern, kétszintes családi ház építhető rá, 60 m² alapterületű földszinttel és 60 m² emeleti szinttel összesen 120 m² lakótérrel. Főbb jellemzők: Beépíthetőség: kétszintes, összesen 120 m² lakóház Érvényes építési engedély az építkezés akár azonnal megkezdhető Csendes, kertvárosi környezet, rendezett utcakép, barátságos szomszédság Közművek a telek előtt / telken belül (ha pontosítani szeretnéd, bele tudom írni) Környék, infrastruktúra: A telek kiváló közlekedéssel rendelkezik: néhány perces sétával elérhető buszmegálló, a HÉV és vasútállomás pedig könnyen megközelíthető, így a belváros is gyorsan elérhető. A közelben óvoda, iskola, boltok, orvosi rendelő, gyógyszertár és bevásárlási lehetőségek találhatók, így ideális választás családok számára is. Miért érdemes megvenni? Ez a telek remek lehetőséget kínál arra, hogy saját igényeid szerint építsd meg álmaid otthonát egy nyugodt, zöldövezeti környezetben, mégis jó közlekedési kapcsolatokkal. A jogilag rendezett helyzet és az érvényes építési engedély pedig garantálja, hogy az építkezés zökkenőmentesen elindulhat. A Duna House teljes kínálatával kapcsolatban segítségére tudok lenni. Amennyiben telefonon nem ér el, kérem küldjön érdeklődő üzenetet. Szükség esetén román nyelven is tudok segíteni Referencia szám: TK066596 | |||


