Garázskapcsolatos
Cím | |||
| Magyarország, Pest, 2243 Kóka | |||
Épület | |||
| Altípus | Ikerház | Építési év | 2025 év |
| Építési mód | Tégla | ||
Műszaki adatok | |||
| Fűtés | Hőszivattyú | Komfort típus | Összkomfort |
| Víz | Van | Gáz | Utcában |
| Villany | Van | Csatorna | Van |
Általános adatok | |||
| Tájolás | észak | ||
Helyiségek | |||
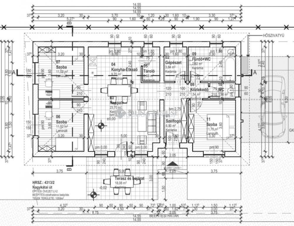
| Szobaszám | 4 | ||
Leírás | |||
KÓKÁN SZUPER ELOSZTÁSÚ ÚJ ÉPÍTÉSŰ IKER HÁZ CSAK A GARÁZSNÁL KAPCSOLÓDIK! Eladó egy kivételes ingatlan, 2025-ben épült, modern, napfényes, 93,20 négyzetméteres téglaépítésű családi ház, egy 450 négyzetméteres telekkel Kókán.Az otthon melegét hőszivattyús rendszer és padlófűtés biztosítja, így a fenntartási költségek rendkívül kedvezőek. A ház szívét képezi egy 23,70 négyzetméteres nappali, mely tökéletes helyszín a családi és baráti összejövetelekhez. A nappaliból nyíló 9,70 négyzetméteres konyha-étkező egyben a kulináris élmények színtere. A ház további részei három kényelmes, egyenként kb. 11,50 négyzetméteres hálószoba, egy modern, minden igényt kielégítő 7,92 négyzetméteres fürdőszoba plusz WC, egy külön WC, valamint praktikus tárolóhelyiségek, mint a gépészeti helyiség és a kamra. Az ingatlan utcafronti, így az elhelyezkedése is kiváló, biztosítva a nyugodt, de mégis könnyen elérhető életformát. A saját garázs kényelmes parkolási lehetőséget nyújt az autóval rendelkezőknek. Kóka egy bájos település, ami a természet közelségével, tágas zöld területeivel nyújt kitűnő élőhelyet mindazoknak, akik a város zajától távol, de mégis annak közelében szeretnének élni. A település fejlett infrastruktúrával rendelkezik, így minden szükséges szolgáltatás és üzlet könnyen elérhető. A környék békés, barátságos közösséggel, amely ideális helyszínt nyújt mind a fiatalok, mind az idősebb generációk számára. Az ingatlan tökéletes választás lehet azok számára, akik minőségi, kényelmes és modern otthont keresnek a természet közelében. VÁROM MEGTISZTELŐ HÍVÁSÁT,TEKINTSÜK MEG ÚJ OTTHONÁT! Forduljon hozzám bizalommal a Duna House teljes kínálatával kapcsolatban, illetve eladási szándékával! Szolgáltatásaink között megtalálható: -Ingyenes hitelügyintézés a nemzetközileg elismert Credipass segítségével, garantáltan a legjobb feltételekkel és a leggyorsabb ügyintézéssel. -Teljes körű ügyintézés ingatlan eladásához és vételéhez. -Energetikai tanúsítvány készítése gyorsan és megbízhatóan. -Ingyenes tanácsadás és értékbecslés, hogy a legjobb döntést hozhassa meg. -Megbízható ügyvédi háttér biztosítása az adásvétel zökkenőmentes lebonyolításához. Kövesse be értékesítői facebook oldalamat, ahol hasznos tippeket olvashat. https://www.facebook.com/profile.php?id=100063629319547 Abonyi Andrea; tel: +36/; e-mail: Referencia szám: HZ075270 | |||


